
Anna Hupfer Immobilien GmbH
Frau Sarah Bieber
004 ···
Nr. anzeigenPreise & Kosten
Kaution
840,00
Warum sehe ich diese Anzeige? – Du siehst diese Anzeige basierend auf Ihrer Navigation auf unserer Website und den Suchkriterien, die du verwendet hast.
Lage
Die Untermhäuser Straße 112 A liegt im beliebten Stadtteil Untermhaus, nordwestlich der Geraer Innenstadt und direkt an der Weißen Elster. In der Nachbarschaft prägen gepflegte Wohnstraßen, kleine Cafés und viel Grün das Bild.
Der Geraer Stadtwald befindet sich quasi vor der Haustür und auch der Hofwiesenpark ist...
Die Wohnung
Wohnungslage
1. Geschoss
Bezug
01.03.2026
Wohnanlage
Energie & Heizung
Warum sehe ich diese Anzeige? – Du siehst diese Anzeige basierend auf Ihrer Navigation auf unserer Website und den Suchkriterien, die du verwendet hast.
Energieausweistyp
Verbrauchsausweis
Gebäudetyp
Wohngebäude
Wesentliche Energieträger
GAS
Gültigkeit
bis 19.11.2033
Effizienzklasse
B
Endenergieverbrauch
66,90 kWh/(m²·a)
Weitere Energiedaten
Energieträger
Gas
Heizungsart
Zentralheizung
Details
Objektbeschreibung
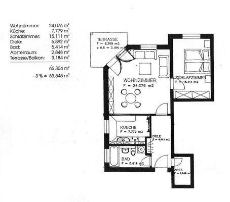
Diese schöne 2-Raumwohnung befindet sich in der 1. Etage eines gepflegten Mehrfamilienhauses.
Sie besteht aus einem Flur, Wohnzimmer mit Zugang zum Balkon, Schlafzimmer, Badezimmer, einer Küche sowie einem Abstellraum. Zur Wohnung gehört ein Kellerabteil.
Ausstattung
Die Einbauküche kann von der aktuellen Mieterin abgekauft werden.
Weitere Informationen
Besichtigungstermin
Ein Besichtigungstermin kann gern via Kontaktanfrage oder unter der Telefonnummer 0156/78193724 vereinbart werden.
Stichworte
Zustand: renoviert, saniert, gepflegt
Sonstiges: frei werdend
Anbieter der Immobilie
Anna Hupfer Immobilien GmbH
Greizer Straße 46, 07545 Gera
Online-ID: 2mlb35y
Referenznummer: 2025-00343
Finde Angebote wie dieses
Hier geht es zu unserem Impressum, den Allgemeinen Geschäftsbedingungen, den Hinweisen zum Datenschutz und nutzungsbasierter Online-Werbung.