

Avathus GmbH
Herr Bernd Müller
072 ···
Nr. anzeigenPreise & Kosten
Provision für Käufer
Bitte beachte, das Angebot kann bei Vertragsabschluss die Zahlung einer Provision beinhalten. Weitere Informationen erhältst Du vom Anbieter.
Lage
Dieses sehr schöne Haus mit 10 Wohnungen, großem Garten und viel Grün drumherum, befindet sich in einer ruhigen Feldrandlange und Wohngegend von Bretten.
Bildung
Mehrere Kindergärten und Kinderkrippen, zwei Grundschulen mit Ganztagesschulen sowie weiterführenden Schulen zum Beispiel Werkrealschulen, Realschule, zwei...
Die Wohnung
Kategorie
Penthouse
Wohnanlage
Energie & Heizung
Warum sehe ich diese Anzeige? – Du siehst diese Anzeige basierend auf Ihrer Navigation auf unserer Website und den Suchkriterien, die du verwendet hast.
Weitere Energiedaten
Heizungsart
Fußbodenheizung, Luft-/Wasser-Wärmepumpe
Details
Objektbeschreibung
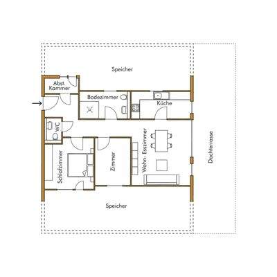
Diese exklusive 3,5-Zimmer-Penthouse-Wohnung lässt keine Wünsche offen und befindet sich in einem 10 Familienhaus (Neubau) mit Aufzug. Die Wohnung begeistert durch ihre hochwertige Ausstattung und erfüllt die modernsten Standards des Wohnens.
Mit einem großzügigen Wohn- und Esszimmer mit separatem Küchenbereich...
Weitere Informationen
Sonstiges
10 Wohnungen
1 Wohnung DG mit Loggia
1 Wohnung in DG mit Dachterrasse
10 Stellplätze im Hof, eine 4m Schallschutzwand wird eingebaut
1 Fahrradraum
1 HWR
1 Müllhäuschen
Aufzug
Spielplatz im Außenbereich
Bildung & Betreuung:
. Kindertagesstätten, Krippen und Kindergärten
...
Anbieter der Immobilie

Online-ID: 2mlc559
Referenznummer: 1934
Finde Angebote wie dieses
Hier geht es zu unserem Impressum, den Allgemeinen Geschäftsbedingungen, den Hinweisen zum Datenschutz und nutzungsbasierter Online-Werbung.