
Aigner Immobilien GmbH
Herr Alexander Mehlstäubl
+49 ···
Nr. anzeigenPreise & Kosten
Provision für Käufer
3,57 % inkl. MwSt.
Die Käuferprovision beträgt 3,57% inkl. gesetzlicher Mehrwertsteuer vom wirtschaftlichen Kaufpreis. Unsere Angebote erfolgen freibleibend und unverbindlich. Irrtum und Zwischenverkauf bleiben vorbehalten.
Lage
Im 17. Jahrhundert wurde der Grundstein für das herrschaftliche Stadtbild Nymphenburgs gelegt: Als Kurfürst Ferdinand Maria aus Freude über den ersehnten Nachwuchs für seine Gemahlin Schloss Nymphenburg errichten ließ, entwickelte sich der Ort rasch zu einem Anziehungspunkt für die gehobene Gesellschaft.
Mit dem Wachstum...
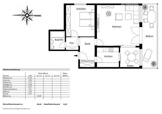
Die Wohnung
Wohnungslage
Erdgeschoss
Bezug
nach Vereinbarung
Derzeitige Nutzung
vermietet
Wohnanlage
Energie & Heizung
Warum sehe ich diese Anzeige? – Du siehst diese Anzeige basierend auf Ihrer Navigation auf unserer Website und den Suchkriterien, die du verwendet hast.
Energieausweistyp
Verbrauchsausweis
Gebäudetyp
Wohngebäude
Baujahr laut Energieausweis
1971
Gültigkeit
bis 11.09.2035
Endenergieverbrauch
106,00 kWh/(m²·a)
Weitere Energiedaten
Energieträger
Gas
Heizungsart
Zentralheizung
Details
Objektbeschreibung
Diese charmante 2-Zimmer-Wohnung befindet sich im Hochparterre eines gut gepflegten Gebäudes, das 1971 erbaut wurde und auf einem großzügigen Grundstück von über 2.800 m² liegt. Das Gebäude erstreckt sich über ein Vordergebäude und ein Gartenhaus und befindet sich in einer ruhigen Lage nahe des Schlosskanals.
Das Gebäude...
Ausstattung
.Bodenbeläge: Hochwertiges Stäbchenparkett in allen Räumen
.Heizung: Gas-Zentralheizung mit Solarthermie auf dem Dach
.Fenster: Hochwertige Holz-Alu-Fenster (bereits erneuert)
.Küche: Einbauküche mit ausreichend Platz für einen kleinen Essbereich
.Badezimmer: Weiß gefliest und mit einer Badewanne...
Weitere Informationen
Sonstiges
Energieausweistyp: Verbrauchsausweis
Baujahr: 1971
Energieeffizienzklasse: D
Energiekennwert: 106 kWh/(m²*a)
Heizungsart: Zentralheizung
Befeuerung/Energieträger: Gas
- https://aigner-immobilien.de/objekt/ID-42813/MehrBilderundInfoshier
Kostenlose Online-Bewertung -...
Anbieter der Immobilie
Aigner Immobilien GmbH
Ruffinistraße 26, 80637 München
Online-ID: 2mlct5z
Referenznummer: 42813
Finde Angebote wie dieses
Hier geht es zu unserem Impressum, den Allgemeinen Geschäftsbedingungen, den Hinweisen zum Datenschutz und nutzungsbasierter Online-Werbung.