
Grundstücks- und Gebäudewirtschafts GmbH Zschopau
Frau Simone König
037 ···
Nr. anzeigenPreise & Kosten
nicht in Nebenkosten enthalten
Kaution
741
Warum sehe ich diese Anzeige? – Du siehst diese Anzeige basierend auf Ihrer Navigation auf unserer Website und den Suchkriterien, die du verwendet hast.
Die Wohnung
Bezug
sofort
Wohnanlage
Energie & Heizung
Warum sehe ich diese Anzeige? – Du siehst diese Anzeige basierend auf Ihrer Navigation auf unserer Website und den Suchkriterien, die du verwendet hast.
Energieausweistyp
Verbrauchsausweis
Gebäudetyp
Wohngebäude
Baujahr laut Energieausweis
1970
Wesentliche Energieträger
Erdgas
Gültigkeit
seit 28.09.2020
Effizienzklasse
B
Endenergieverbrauch
70,40 kWh/(m²·a)
Weitere Energiedaten
Energieträger
Gas
Details
Objektbeschreibung
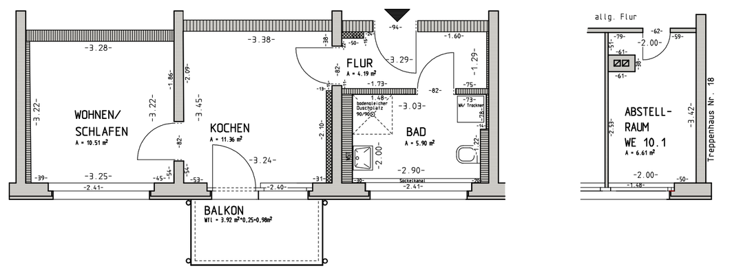
In diesem schönen komplett neu sanierten Mehrfamilienhaus mit Lift finden Sie im Erdgeschoss eine kleine 2-Raum Wohnung mit 33 m².
Zur Wohnung gehören ein kombiniertes Wohn- und Schlafzimmer, ein Bad mit bodengleicher, eine Küche mit Balkon und ein Flur. Die Wohnung ist renoviert, die Bäder sind gefliest. Außerdem gibt es...
Anbieter der Immobilie
Grundstücks- und Gebäudewirtschafts GmbH Zschopau
Waldkirchner Straße 14, 09405 Zschopau
Online-ID: 2mlcw5q
Finde Angebote wie dieses
Hier geht es zu unserem Impressum, den Allgemeinen Geschäftsbedingungen, den Hinweisen zum Datenschutz und nutzungsbasierter Online-Werbung.