WIS Wohnungsbaugesellschaft im Spreewald mbH

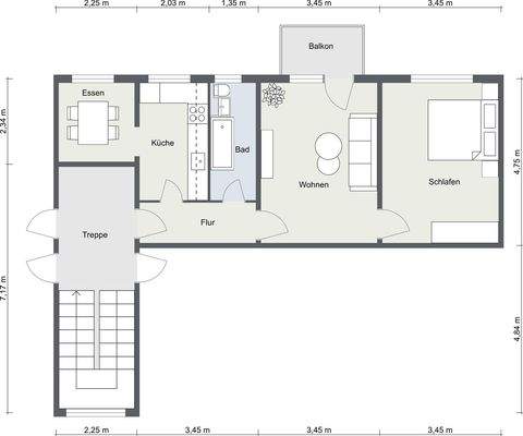
2-Raum-Wohnung mit Balkon und Esszimmer

€ 356,85
Kaltmiete zzgl. NK
54,90 m²
Wohnfläche ca.
2
Zimmer

Der Anbieter dieses Objekts hat gegenüber der AVIV Germany GmbH als Betreiber dieses Online-Marktplatzes erklärt, nicht als Unternehmer im Sinne des § 1 KSchG zu handeln. Die im Verbraucherschutzrecht der Union verankerten Verbraucherrechte (insbesondere Informationspflichten und Rücktritts- bzw. Widerrufsrechte) finden auf den Vertrag zwischen dem Anbieter des Objekts und Ihnen (dem Interessenten) keine Anwendung.

Gewerblicher Anbieter

Der Anbieter dieses Objekts hat gegenüber der AVIV Germany GmbH als Betreiber dieses Online-Marktplatzes erklärt, als Unternehmer im Sinne des § 1 KSchG zu handeln.

AdresseA.-v.-Humboldt-Str. 10
03222 Lübbenau/Spreewald 
Auf Karte ansehen

Preise & Kosten

Kaltmiete € 356,85 Nebenkosten € 90 Heizkosten € 90 Warmmiete € 536,85 Preis/m² € 6,50

Kaution

1.070,00

Lage

Spreewald, das heißt Erholung, Entspannung und natürlich auch Erleben u. Erforschen. Leben Sie in einer in Europa einmaligen und faszinierenden Lagunenlandschaft mit unzähligen Flüssen. Und - Lübbenau ist staatlich anerkannter Erholungsort - Wohnen wo andere Urlaub machen!

Die Wohnung

Wohnungslage

4. Geschoss

Bezug

01.03.2026

  • Bad mit Fenster und Wanne
  • Balkon

Wohnanlage

  • Baujahr: 1966

Energie & Heizung

A+
A
B
C
D
E
F
G
H
0 25 50 75 100 125 150 175 200 225 250 +

Energieausweistyp

Verbrauchsausweis

Gebäudetyp

Wohngebäude

Wesentliche Energieträger

FERN

Gültigkeit

seit 06.03.2018

Effizienzklasse

B

Endenergieverbrauch

74,00 kWh/(m²·a)

Weitere Energiedaten

Energieträger

Fernwärme

Details

Objektbeschreibung

Kurze Wege zur Schule und zum Kindergarten sowie die moderaten Mieten machen das Wohngebiet für Familien interessant. Junge Leute, Azubis der benachbarten AWO-Fachschule finden hier ihre erste eigene Wohnung. Die 1- bis 4-Raum-Wohnungen sind vollmodernisiert. Grünflächen und Spielecken lockern das Wohnumfeld auf. Die nah...

Mehr anzeigen

Weitere Informationen

Stichworte
Anzahl Balkone: 1, Wohnungsnr.: 1241.10.15

Anbieter der Immobilie

WIS Wohnungsbaugesellschaft im Spreewald mbH

im Durchschnitt  5,00  Sterne
(bei 2 Bewertungen)

Oer-Erkenschwick-Platz 1, 03222 Lübbenau

Anbieter-Profil Anbieter-Impressum

Online-ID: 2mld25r

Referenznummer: 1241.10.15

Finde Angebote wie dieses

imageimageimage

Hier geht es zu unserem Impressum, den Allgemeinen Geschäftsbedingungen, den Hinweisen zum Datenschutz und nutzungsbasierter Online-Werbung.