

About Homes
Frau Lisa Höhn
004 ···
Nr. anzeigenPreise & Kosten
Provision für Käufer
4,76 % inkl. MwSt. des beurkundeten Kaufpreises
Lage
Das Grundstück dieses exklusiven Neubauprojekts ist in der Planung bis ins kleinste Detail durchdacht und wird die leichte Hanglage optimal nutzbar machen. Hier wird hier eine harmonische Verbindung zwischen Natur und Architektur entstehen. Die geplanten Terrassenflächen werden großzügig angelegt, um weite Ausblicke zu bieten...
Das Haus
Kategorie
Einfamilienhaus
Baujahr
2026
Energie & Heizung
Warum sehe ich diese Anzeige? – Du siehst diese Anzeige basierend auf Ihrer Navigation auf unserer Website und den Suchkriterien, die du verwendet hast.
Weitere Energiedaten
Energieträger
Solar
Heizungsart
Fußbodenheizung, offener Kamin, Zentralheizung
Details
Objektbeschreibung
Das hier angebotene projektierte Neubauvorhaben besticht durch eine beeindruckende, moderne Architektur und bietet mit einer großzügigen Gesamtfläche von rund 553 m² ein Wohnerlebnis der Extraklasse. Das Haus, das sich in einer leichten Hanglage befinden wird, ist bereits projektiert und final genehmigt, sodass dem baldigen...
Ausstattung
Der Ausstattung sind bei diesem Projekt keine Grenzen gesetzt, sodass Sie die Räume nach Ihren persönlichen Vorstellungen und Bedürfnissen gestalten können. Von hochwertigen Materialien bis hin zu modernster Technik - hier können Sie Ihren individuellen Wohntraum verwirklichen.
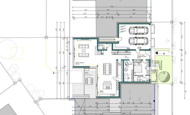
Das Erdgeschoss dieses modernen...
Preisinformation
2 Garagenstellplätze
Weitere Informationen
Sonstiges
Der Angebotspreis bezieht sich auf das Grundstück samt genehmigter Planung zzgl. Abriss des Bestandsgebäudes und Neubaukosten.
Die von uns präsentierten Objektangaben werden nicht eigenständig ermittelt; wir übernehmen keine Gewähr für Richtigkeit oder Vollständigkeit. Dieses Exposé dient ausschließlich...
Anbieter der Immobilie
About Homes
Ebershaldenstr. 15/1, 73728 Esslingen am Neckar

Online-ID: 2mlgb52
Referenznummer: HOME_24_53
Finde Angebote wie dieses
Hier geht es zu unserem Impressum, den Allgemeinen Geschäftsbedingungen, den Hinweisen zum Datenschutz und nutzungsbasierter Online-Werbung.