
WBG "Glück Auf" Gera eG
Herr/Frau Vermietungs- und Mitgliederservice
036 ···
Nr. anzeigenPreise & Kosten
zzgl. Nebenkosten
Kaution
308,00
Warum sehe ich diese Anzeige? – Du siehst diese Anzeige basierend auf Ihrer Navigation auf unserer Website und den Suchkriterien, die du verwendet hast.
Lage
Auf eigener Grundstücksfläche werden in den kommenden Jahren vier Gebäude errichtet. Architektonisch und auch durch die parkähnlich gestalteten Außenanlagen entsteht ein modernes und attraktives Wohnensemble. Hervorragend sind die Lage und die Einbindung in den umgebenden öffentlichen Raum. Alle wichtigen infrastrukturellen...
Die Wohnung
Wohnungslage
1. Geschoss
Bezug
sofort
Wohnanlage
Energie & Heizung
Warum sehe ich diese Anzeige? – Du siehst diese Anzeige basierend auf Ihrer Navigation auf unserer Website und den Suchkriterien, die du verwendet hast.
Energieausweistyp
Bedarfsausweis
Gebäudetyp
Wohngebäude
Wesentliche Energieträger
KEINE ANGABE
Gültigkeit
seit 18.09.2020
Effizienzklasse
B
Endenergiebedarf
56,50 kWh/(m²·a)
Details
Objektbeschreibung
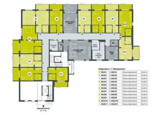
Im ersten Bauabschnitt wurde ein Gebäude errichtet, das generationsübergreifendes Wohnen von jungen Menschen, Familien und Senioren vereint. Zwei separate Hauseingänge (1 und 1a) trennen räumlich die beiden Senioren-Wohnbereiche, mit jeweils 11 Apartments, von den 15 Wohnungen in den oberen Etagen. Alle Wohnungen und...
Ausstattung
Alle 22 Apartments verfügen über einen schönen Balkon und ein eigenes Bad mit bodengleicher Dusche. Eine Miniküche kann problemlos eingebaut werden. Alle Bewohner können außerhalb ihrer Apartments eine modern eingerichtete Küche sowie einen großen Wohn- und Aufenthaltsbereich gemeinsam nutzen - damit ist eine familiäre...
Weitere Informationen
Sonstiges
A 11
Stichworte
Anzahl Balkone: 1, Wohnungsnr.: 41540/203/101/23
Dokumente
Anbieter der Immobilie
Online-ID: 2mlgb5f
Referenznummer: 41540/203/101/23
Finde Angebote wie dieses
Hier geht es zu unserem Impressum, den Allgemeinen Geschäftsbedingungen, den Hinweisen zum Datenschutz und nutzungsbasierter Online-Werbung.