
Immobilien von Behr GmbH
Herrn Joachim C. Baron von Behr-Baerwald
051 ···
Nr. anzeigenPreise & Kosten
Provision für Käufer
19.635,00 € Käuferprovision inkl. 19 % MwSt.
Lage
**Schafflund - Ein charmantes Kleinod in Schleswig-Holstein**
Willkommen in Schafflund, einem idyllischen Ort im malerischen Schleswig-Holstein, der durch seine herzliche Gemeinschaft und die beeindruckende Natur besticht. Hier vereinen sich ländlicher Charme und moderne Lebensqualität in perfekter...
Das Haus
Kategorie
Einfamilienhaus
Baujahr
2023
Energie & Heizung
Warum sehe ich diese Anzeige? – Du siehst diese Anzeige basierend auf Ihrer Navigation auf unserer Website und den Suchkriterien, die du verwendet hast.
Energieausweistyp
Bedarfsausweis
Gebäudetyp
Wohngebäude
Baujahr laut Energieausweis
2023
Wesentliche Energieträger
Erdwärme
Gültigkeit
bis 15.12.2035
Effizienzklasse
A+
Endenergiebedarf
13,10 kWh/(m²·a)
Weitere Energiedaten
Energieträger
Erdwärme
Details
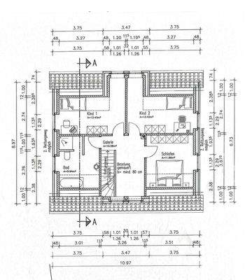
Objektbeschreibung
**Neues Einfamilienhaus in hervorragender Lage in Schafflund!**
Willkommen in diesem modernen Einfamilienhaus, das sich in einer der begehrtesten Lagen von Schafflund - tlw. mit einem alten Baumbestand eingefasst - befindet. Diese Immobilie vereint zeitgemäße Architektur mit einem einladenden Wohnambiente und bietet...
Preisinformation
2 Stellplätze
Weitere Informationen
Stichworte
Stellplatz vorhanden, Anzahl der Schlafzimmer: 4, Anzahl der Badezimmer: 2, Anzahl Terrassen: 1, 2 Etagen
Anbieter der Immobilie
Immobilien von Behr GmbH
Im Heidkampe 80, 30659 Hannover
Online-ID: 2mlgp5t
Referenznummer: 21326
Finde Angebote wie dieses
Hier geht es zu unserem Impressum, den Allgemeinen Geschäftsbedingungen, den Hinweisen zum Datenschutz und nutzungsbasierter Online-Werbung.