
Dahler & Company Wohnen München GmbH & Co. KG
DAHLER München
004 ···
Nr. anzeigenPreise & Kosten
Provision für Käufer
provisionsfrei
Lage
Die Immobilie liegt in einer besonders charmanten Wohngegend im beliebten Münchner Stadtteil Berg am Laim - einem Ort, der urbanes Leben und ruhige Wohnqualität harmonisch miteinander verbindet. Hier trifft die Nähe zur Stadt auf ein angenehmes, familiäres Umfeld mit gewachsenem Charakter. Gepflegte Häuser, begrünte Innenhöfe...
Die Wohnung
Wohnungslage
Erdgeschoss
Bezug
01.06.2026
Wohnanlage
Energie & Heizung
Warum sehe ich diese Anzeige? – Du siehst diese Anzeige basierend auf Ihrer Navigation auf unserer Website und den Suchkriterien, die du verwendet hast.
Weitere Energiedaten
Energieträger
Gas
Heizungsart
Fußbodenheizung, Luft-/Wasser-Wärmepumpe
Details
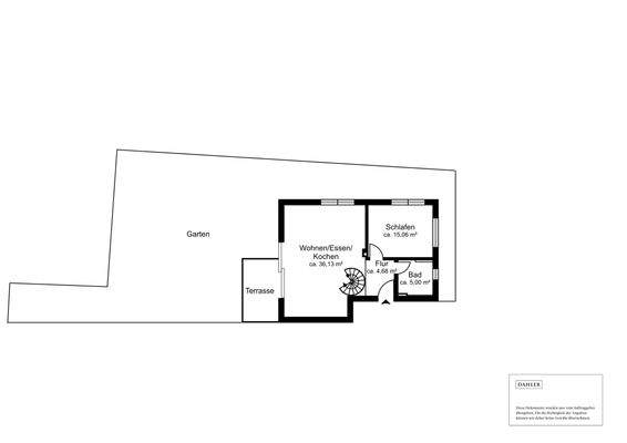
Objektbeschreibung
Diese lichtdurchflutete 3-Zimmer-Maisonette-Wohnung bietet Ihnen auf zwei Ebenen das Raumgefühl einem Hauses kombiniert mit allen Vorzügen einer KfW 55 Neubaus. Die Aufteilung ist perfekt für eine kleine Familie oder für Paare mit Homeoffice Option. Der besondere Fokus liegt auf dem großzügigen, privaten Garten - ein ideales...
Ausstattung
. Modernes Naubauhaus im klassischen Stil
. KfW 55 Neubau-Standard, niedrige Energiekosten
. Große 3-Zimmer-Wohnung auf zwei Ebenen
. Lichtdurchfluteter Wohn-Essbereich mit offener Küche
. Inklusive hochwertiger Einbauküche (Design frei wählbar)
. Ein gemütliches Schlafzimmer mit Zugang zum Garten
. Helles...
Preisinformation
1 Tiefgaragenstellplatz, Kaufpreis: 36.000,00 EUR
Weitere Informationen
Stichworte
Nutzfläche: 97,00 m², Anzahl der Schlafzimmer: 2, Anzahl der Badezimmer: 2, Anzahl Terrassen: 1
Anbieter der Immobilie
Online-ID: 2mlgw55
Referenznummer: DC-MGW-4065
Finde Angebote wie dieses
Hier geht es zu unserem Impressum, den Allgemeinen Geschäftsbedingungen, den Hinweisen zum Datenschutz und nutzungsbasierter Online-Werbung.