
VON POLL IMMOBILIEN Speyer - Sascha Lenz
VON POLL IMMOBILIEN Shop Speyer
004 ···
Nr. anzeigenPreise & Kosten
Provision für Käufer
Käuferprovision beträgt 2,38 % (inkl. MwSt.) des beurkundeten Kaufpreises
Lage
Limburgerhof ist eine über 10.000 Einwohner große Gemeinde und liegt in der Metropolregion Rhein-Neckar unweit des Pfälzer Waldes. Wirtschaftlich profitiert Limburgerhof von der Nähe zur BASF mit dem ortseigenen BASF Agrarzentrum.
Geschäfte des täglichen Bedarfs sind in einer Vielzahl vorhanden, für ausgedehntere...
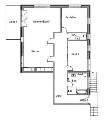
Die Wohnung
Wohnungslage
Erdgeschoss
Wohnanlage
Energie & Heizung
Warum sehe ich diese Anzeige? – Du siehst diese Anzeige basierend auf Ihrer Navigation auf unserer Website und den Suchkriterien, die du verwendet hast.
Energieausweistyp
Bedarfsausweis
Gebäudetyp
Wohngebäude
Baujahr laut Energieausweis
1960
Wesentliche Energieträger
ELECTRICITY
Gültigkeit
bis 28.11.2034
Effizienzklasse
A+
Endenergiebedarf
22,20 kWh/(m²·a)
Weitere Energiedaten
Heizungsart
Fußbodenheizung, Luft-/Wasser-Wärmepumpe
Details
Objektbeschreibung
Diese wunderschöne Eigentumswohnung in Limburgerhof könnte schon bald Ihr neues Zuhause sein. Mit wenigen Stufen betreten Sie über Ihren eigenen Eingang die Wohnung im Hochparterre.
Ein langer Flur bringt Sie in die einzelnen Zimmer: einen offenen Wohn- Ess- und Küchenbereich mit Parkett und grauen Fliesen können...
Ausstattung
- offener Küchen- und Wohnbereich mit großem Balkon
- Bad mit Dusche & Badewanne
- Fußbodenheizung
- Fliesen- und Parkettboden
- eigener Eingang
- Kellerraum
- Außenstellplatz
- Wärmepumpe
- Photovoltaikanlage
Preisinformation
1 Stellplatz
Weitere Informationen
Sonstiges
Es liegt ein Energiebedarfsausweis vor.
Dieser ist gültig bis 28.11.2034.
Endenergiebedarf beträgt 22.20 kwh/(m²*a).
Wesentlicher Energieträger der Heizung ist Strom.
Das Baujahr des Objekts lt. Energieausweis ist 1960.
Die Energieeffizienzklasse ist A+.
GELDWÄSCHE: Als...
Anbieter der Immobilie
VON POLL IMMOBILIEN Speyer - Sascha Lenz
Wormser Straße 15, 67346 Speyer
Online-ID: 2mlh95y
Referenznummer: 25 130 038_4sl
Finde Angebote wie dieses
Hier geht es zu unserem Impressum, den Allgemeinen Geschäftsbedingungen, den Hinweisen zum Datenschutz und nutzungsbasierter Online-Werbung.