
Vonovia Kundenservice GmbH
Frau Stülpner
016 ···
Nr. anzeigenPreise & Kosten
in Warmmiete enthalten
Kaution
4.406,01
Warum sehe ich diese Anzeige? – Du siehst diese Anzeige basierend auf Ihrer Navigation auf unserer Website und den Suchkriterien, die du verwendet hast.
Lage
Sie möchten von den Vorteilen einer zentralen Wohnlage profitieren, aber zugleich eine grüne Umgebung genießen? Dann sind Sie hier genau richtig. Supermärkte, Haltestellen und verschiedene Einrichtungen sind nur wenige Gehminuten entfernt.
Die Wohnstruktur im Stadtteil Löbtau zeichnet sich insbesondere durch zahlreiche...
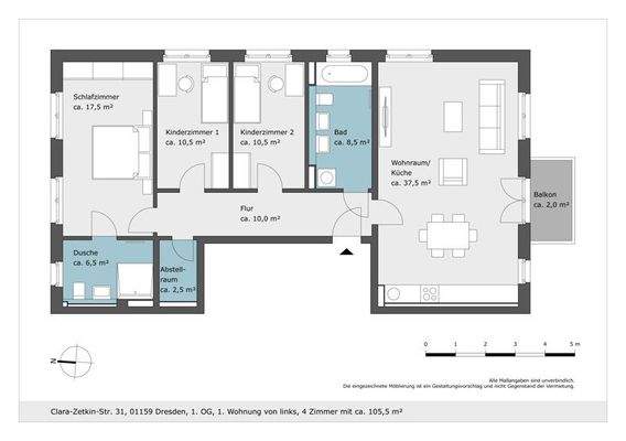
Die Wohnung
Wohnungslage
1. Geschoss
Bezug
sofort
Wohnanlage
Energie & Heizung
Warum sehe ich diese Anzeige? – Du siehst diese Anzeige basierend auf Ihrer Navigation auf unserer Website und den Suchkriterien, die du verwendet hast.
Energieausweistyp
Bedarfsausweis
Gebäudetyp
Wohngebäude
Baujahr laut Energieausweis
2021
Gültigkeit
bis 20.09.2033
Effizienzklasse
B
Endenergiebedarf
51,00 kWh/(m²·a)
Weitere Energiedaten
Energieträger
Fernwärme
Heizungsart
Fußbodenheizung, Zentralheizung
Details
Objektbeschreibung
Das gepflegte Gebäude-Ensemble wurde im Jahr 2024 erbaut.
Alle Wohnungen sind mit Einbauküche ausgestattet und haben einen Balkon oder Terrasse.
Moderne Details wie Parkettböden und Fußbodenheizung versprechen angenehmes und stilvolles Wohnen.
Zudem besteht die Möglichkeit einen Tiefgaragenstellplatz...
Ausstattung
Barrierearmes Gebäude; Aufzug; Balkon; Ausrichtung Freisitz: Süd; Bodengleiche Dusche; Einbauküche; offene Küche; Spüle; E-Herd; Abstellraum; Parkett; Fußbodenheizung; Zentralheizung; Fernwärme; Rollläden; Isolierverglasung; Mieterkeller; Fahrradabstellraum; Videosprechanlage; Waschmaschinenanschluss; vollständige...
Weitere Informationen
Sonstiges
Hinweise darüber, wie die Vonovia Ihre personenbezogenen Daten als Interessent verarbeitet, erhalten Sie unter www.vonovia.com/datenschutz. Alle Angaben in diesem Exposé wurden sorgfältig und so vollständig wie möglich gemacht. Gleichwohl kann das Vorhandensein von Fehlern nicht ausgeschlossen werden. Die Angaben...
Anbieter der Immobilie
Vonovia Kundenservice GmbH
Universitätsstr. 133, 44803 Bochum
Online-ID: 2mljj5k
Referenznummer: 82-1719140003
Finde Angebote wie dieses
Hier geht es zu unserem Impressum, den Allgemeinen Geschäftsbedingungen, den Hinweisen zum Datenschutz und nutzungsbasierter Online-Werbung.