Wohnzone Schlössl GmbH

Herr Johannes Gonska

Jetzt zuschlagen: Top Rendite mit dieser Anlegerwohnung in Oberndorf!

€ 226.800
Kaufpreis
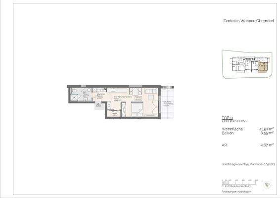
42,95 m²
Wohnfläche ca.
1,5
Zimmer
Finanzierung berechnen mit durchblicker

Der Anbieter dieses Objekts hat gegenüber der AVIV Germany GmbH als Betreiber dieses Online-Marktplatzes erklärt, nicht als Unternehmer im Sinne des § 1 KSchG zu handeln. Die im Verbraucherschutzrecht der Union verankerten Verbraucherrechte (insbesondere Informationspflichten und Rücktritts- bzw. Widerrufsrechte) finden auf den Vertrag zwischen dem Anbieter des Objekts und Ihnen (dem Interessenten) keine Anwendung.

Gewerblicher Anbieter

Der Anbieter dieses Objekts hat gegenüber der AVIV Germany GmbH als Betreiber dieses Online-Marktplatzes erklärt, als Unternehmer im Sinne des § 1 KSchG zu handeln.

AdresseParacelsusstraße
5110 Oberndorf bei Salzburg 
Auf Karte ansehen

Preise & Kosten

Kaufpreis € 226.800

Provision für Käufer

Bitte beachte, das Angebot kann bei Vertragsabschluss die Zahlung einer Provision beinhalten. Weitere Informationen erhältst Du vom Anbieter.

Lage

Die Wohnung

Wohnungslage

1. Geschoss

  • Bad mit Dusche
  • Balkon
  • Böden: Fliesenboden, Parkett
  • Zustand: Erstbezug
  • Weitere Räume: Abstellraum

Wohnanlage

  • Zustand: Neubau
  • Personenaufzug

Energie & Heizung

Heizwärmebedarf (HWB)

33,00 kWh/(m²·a)

Gesamtenergieeffizienz (fGEE)

0,66

Weitere Energiedaten

Energieträger

Pellets

Details

Objektbeschreibung

Mit einem Eigenkapital von 99.000 € können Sie diese hochwertige Neubauwohnung erwerben und den Restbetrag bequem über eine Bankfinanzierung abdecken.
Das Besondere: Die monatlichen Mieteinnahmen decken die Kreditrate, sodass sich die Immobilie praktisch selbst finanziert.

 

DIE ECKDATEN DER...

Mehr anzeigen

Weitere Informationen

Stichworte
Stellplatz vorhanden, Tiefgarage vorhanden, Anzahl der Badezimmer: 1, Anzahl der separaten WCs: 1, Anzahl Balkone: 1, Balkon-Terrassen-Fläche: 8,55 m², Bundesland: Salzburg, Wohnungsnr.: 11

Anbieter der Immobilie

Partner

Wohnzone Schlössl GmbH

Herzog Odilo-Straße 4, 5310 MONDSEE

user

Herr Johannes Gonska

Dein Ansprechpartner

Anbieter-Website Anbieter-Profil Anbieter-Impressum

Online-ID: 2mlk35s

Referenznummer: OBGC2025121909011616193433025b3

Finde Angebote wie dieses

imageimageimage

Günstige Immobilienfinanzierung einfach online berechnen

Persönliches Angebot berechnen

Hier geht es zu unserem Impressum, den Allgemeinen Geschäftsbedingungen, den Hinweisen zum Datenschutz und nutzungsbasierter Online-Werbung.