Version: 8.25.2Navigation überspringen
17,50 €
8 Zimmer  •  214,5 m² Bürofläche
Immowelt logo

Büro zur Miete
17,50 €
/m²
8 Zimmer  •  214,5 m² Bürofläche

Premium-Büro in Top-Lage der Mariahilfer Straße - vollständig renoviert und Platz für Wachstum - A\\

Exklusives Büroangebot - Vollsaniertes Büro mit Erweiterungsmöglichkeit!

Wir freuen uns, Ihnen diese beeindruckende Bürofläche vorstellen zu dürfen. Mit einer Größe von 213 m² und 8 Bürozimmern bietet sie bereits eine großzügige Arbeitsumgebung. Doch das ist noch nicht alles - auf derselben Etage besteht die Möglichkeit, das Büro um weitere 110 m² zu erweitern!

Das vollständig sanierte Büro verfügt über 2 doppelte WC-Einheiten, 2 separate Server-Abstellräume und einen geräumigen Empfangsbereich. Alle Zimmer sind zentral begehbar und bieten flexible Gestaltungsmöglichkeiten für Ihre individuellen Bedürfnisse.

Aktuell werden die Heizkörper erneuert, um Ihnen einen angenehmen Arbeitskomfort zu gewährleisten. Darüber hinaus kann die Klimaanlage auf Verhandlungsbasis nachgerüstet werden, um das Raumklima optimal zu regulieren.

Das Büro befindet sich im 3. Liftstock und ist bequem erreichbar. Es bietet Ihnen eine erstklassige Arbeitsumgebung, in der Sie Ihre geschäftlichen Aktivitäten erfolgreich vorantreiben können.

Nutzen Sie die Chance, Ihre Bürofläche auf insgesamt 323 m² zu erweitern und somit Platz für weiteres Wachstum und zusätzliche Mitarbeiter zu schaffen.

Für einen virtuellen Rundgang besuchen Sie bitte die Immobilie auf: https://my.matterport.com/show/?m=WZfubSdpL5w

"Auf Grund der EU-Richtlinien zum Fernabsatz- und Auswärtsgeschäfte-Gesetz bitten wir um Ihr Verständnis, dass wir Ihnen seit 13. Juni 2014 die Objekt-Unterlagen erst nach Ihrer Bestätigung, dass Sie unser Tätigwerden wünschen und über Ihre Rücktrittsrechte aufgeklärt wurden, zusenden können. Bevor Sie die Unterlagen zugesendet bekommen, erhalten Sie eine Mail in der Sie diese beiden Punkte bestätigen müssen. Vielen Dank für Ihr Vertrauen!"

Für eine noch größere Auswahl an Immobilien besuchen Sie www.akkadia.at [http://www.akkadia.at]

Infrastruktur / Entfernungen

Gesundheit
Arzt <500m
Apotheke <500m
Klinik <500m
Krankenhaus <1.000m

Kinder & Schulen
Schule <500m
Kindergarten <500m
Universität <1.000m
Höhere Schule <1.000m

Nahversorgung
Supermarkt <500m
Bäckerei <500m
Einkaufszentrum <500m

Sonstige
Geldautomat <500m
Bank <500m
Post <500m
Polizei <500m

Verkehr
Bus <500m
U-Bahn <500m
Straßenbahn <1.000m
Bahnhof <500m
Autobahnanschluss <4.500m

Angaben Entfernung Luftlinie / Quelle: OpenStreetMap

Merkmale

  • Personenaufzug
  • Gäste-WC
  • Barrierefrei
  • Bodenbelag: Parkett
  • voll erschlossen

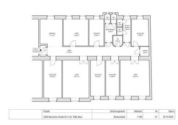
Grundrisse

Grundrisse
1 / 3

Virtueller Rundgang

3D tour

Bausubstanz und Energie

Heizwärmebedarf (HWB)

E

Gesamtenergieeffizienz (fGEE)

C
  • Baujahr1900
  • Zustand der ImmobilieAltbau (bis 1945), renoviert / saniert
  • EnergieträgerFernwärme
Immowelt logo

Mietkosten

Nettokaltmiete
17,50 €/m²
3.753,75 €
Betriebskosten
663,25 €
Provision für Mieter
3 Bruttomonatsmieten zzgl. 20% USt.
Kaution
16.000,00 €
Weitere Preisinformationen
Nettokaltmiete: 3.753,75 EUR

Lage

address-icon
Wien (1060)
Der Anbieter hat die genaue Adresse nicht freigegeben
Wir bieten Ihnen eine erstklassige Bürofläche in der begehrten Mariahilfer Straße in Wien zur Vermietung an. Die Lage zeichnet sich durch ihre ausgezeichnete Erreichbarkeit und ihre Nähe zu öffentlichen Verkehrsmitteln aus. In unmittelbarer Nähe finden Sie die U-Bahnstationen Zieglergasse (U3) und Neubaugasse (U3), die Ihnen eine schnelle und bequeme Anbindung ermöglichen. Darüber hinaus sind auch Bus- (13A, 14A) und Straßenbahnhaltestellen in kurzer Gehdistanz erreichbar.
Besonders attraktiv ist die fußläufige Nähe zum Westbahnhof, der Ihnen zusätzliche Verbindungsmöglichkeiten und Anbindung an den Fernverkehr bietet.
Diese ausgezeichnete Verkehrsanbindung ermöglicht es Ihnen, problemlos in alle Richtungen der Stadt zu gelangen und Ihre geschäftlichen Aktivitäten effizient zu gestalten. Zudem ist die Innenstadt bequem zu Fuß in nur 10 Minuten erreichbar, was Ihnen zusätzliche Flexibilität und Nähe zu anderen wichtigen Standorten bietet.

Weitere Informationen

Stichworte Nutzfläche: 214,50 m², Anzahl der separaten WCs: 4, Bundesland: Wien, 4 Etagen Sonstiges: Kabelkanäle

Weitere Services

Lust auf eine Besichtigung?
Eine Frage zur Immobilie?
Mit einer persönlichen Nachricht hast du bessere Chancen auf eine Antwort.
Mit der Nutzung der oben angegebenen Telefonnummer oder durch Klicken auf „Kontaktieren“ akzeptierst Du die Allgemeinen Nutzungsbedingungen, denen Du jederzeit widersprechen kannst. Weitere Informationen zum Datenschutz

Über den Anbieter

Göttweihergasse 1/1, 1010 WIEN
partner badge
Partnerschaft
Herr Gregor SeherDein Kontakt
Online-ID: 25GKEZWPH5H5
Referenznummer: OBGC20241104184511565dd2a263f0d
Wie zufrieden bist du mit dieser Seite (nicht mit der Immobilie selbst)?