
FALC Real Estate
Herr Armando Rencoret
+49 ···
Nr. anzeigenPreise & Kosten
Provision für Käufer
keine Käuferprovision
Lage
Die Villa befindet in der Zone von Lloseta, zwischen Inca (3,4 KM) und Binissalem (6 KM) in einem ruhigen Ort.
Die Umgebung ist von rustikalen Fincas umgeben und viel offenes Land.
Auch wenn streng genommen Sineu die geographische Mitte der Insel markiert, wird Inca generell als Herzen Mallorcas bezeichnet. Die...
Das Haus
Kategorie
Villa
Baujahr
1985
Energie & Heizung
Warum sehe ich diese Anzeige? – Du siehst diese Anzeige basierend auf Ihrer Navigation auf unserer Website und den Suchkriterien, die du verwendet hast.
Energieausweistyp
Verbrauchsausweis
Gebäudetyp
Wohngebäude
Wesentliche Energieträger
Strom
Gültigkeit
bis 01.01.2026
Effizienzklasse
E
Endenergieverbrauch
46,10 kWh/(m²·a)
Weitere Energiedaten
Energieträger
Elektro
Heizungsart
Ofen, offener Kamin
Details
Objektbeschreibung
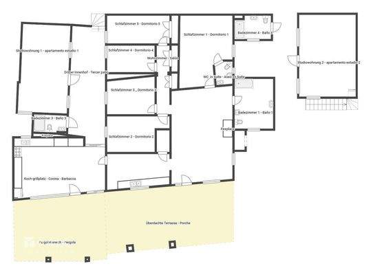
In mittlerer Insellage bietet Ihnen dieses Anwesen von 3207 m² einen wunderbaren Rückzugsort, an dem Sie sich zurückziehen und in das mediterrane Insel Leben eintauchen können.
Die Wohnfläche von knapp 300 m² umfasst einen geräumigen Wohnraum mit ca. 30 m² Fläche, eine offene Einbauküche, einen überdachten...
Ausstattung
Kamin, privater Pool, Einbauschränke, Keramikfliesen.
Die Finca ist legal und verfügt über die Bewohnbarkeitsbescheinigung.
Preisinformation
6 Stellplätze
Weitere Informationen
Sonstiges
FALC ist eine international aufgestellte Immobilienagentur, für die Kundenzufriedenheit an erster Stelle steht. Zahlreiche Auszeichnungen belegen dies. Unsere kompetenten Agenten vor Ort sind absolute Kenner des jeweiligen Marktes und freuen sich jederzeit über Ihre Kontaktaufnahme. Machen Sie sich Ihr eigenes...
Dokumente
Anbieter der Immobilie
FALC Real Estate
Calle Marbella 53, 07610 Palma de Mallorca
Online-ID: 2mlsu5h
Referenznummer: FALC-ARR-31424
Finde Angebote wie dieses
Hier geht es zu unserem Impressum, den Allgemeinen Geschäftsbedingungen, den Hinweisen zum Datenschutz und nutzungsbasierter Online-Werbung.