

Wohnung zur Miete • nur mit Wohnberechtigungsschein376 €3 Zimmer • 71,6 m² • 2. Geschoss
376 €
3 Zimmer • 71,6 m² • 2. Geschoss
3R, Meuselwitz, Balkon, Wohnberechtigungsschein!
Merkmale
- Bezug: 01.08.25
- 2. Geschoss
- Außen-Stellplatz
- Balkon
- DSL-Anschluss
- Badezimmer: Badewanne, Bad mit Fenster
- Bodenbelag: Fliesen, Laminat
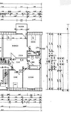
Grundrisse
Grundrisse
1 / 1
Realisiere Dein Projekt
Bausubstanz und Energie
Energieausweis
B
- Baujahr1994
- Zustand der ImmobilieNeubau
- HeizungsartZentralheizung
- EnergieträgerFernwärme
Mietkosten
Kaltmiete
5,25 €/m²
376 €
Nebenkosten
170 €
Heizkosten
in Nebenkosten enthalten
Kaution
2 x Kaltmiete
Lage

Lauffener Ring 11, Meuselwitz (04610)
Weitere Informationen
Weitere Services
Lust auf eine Besichtigung?
Eine Frage zur Immobilie?
Über den Anbieter
Immobilienbüro BöttcherMaklerbüro
Alte Straße 10, 07407 Rudolstadt
Partnerschaft + Diamond Partner
Herr Georg HahnDein Kontakt
Online-ID: 2mlts5c
Immobilienbüro Böttcher
Bewertung: 4,4 von 5 Sternen
Wie zufrieden bist du mit dieser Seite (nicht mit der Immobilie selbst)?

