

KILIAN IMMOBILIEN
Herr Dipl. Betriebswirt (FH) Thomas Kilian
091 ···
Nr. anzeigenPreise & Kosten
Provision für Käufer
Käuferprovision in Höhe von 3,57 % inkl. der gesetzlichen Mehrwertsteuer aus dem notariellen Gesamtkaufpreis, verdient und fällig am Tage der Beurkundung.
Lage
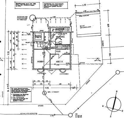
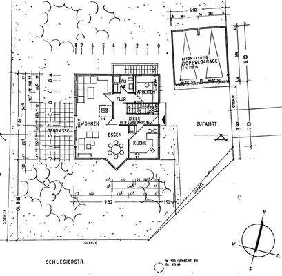
Dieses Licht-durchflutete und sehr gut geschnittenes, großräumiges und voll unterkellertes Einfamilienhaus mit offener Wohnraumgestaltung, mit Einbauküche, mit Kachelofen, mit Terrasse, mit Gartenhütte, einer Doppelgarage, großem Garten und mit viel Platz zum Leben befindet sich auf einem 905 qm Grundstück im beliebten...
Das Haus
Kategorie
Einfamilienhaus
Geschosse
3 Geschosse
Baujahr
1993
Bezug
nach Absprache
Energie & Heizung
Warum sehe ich diese Anzeige? – Du siehst diese Anzeige basierend auf Ihrer Navigation auf unserer Website und den Suchkriterien, die du verwendet hast.
Weitere Energiedaten
Haustyp
Fertighaus
Energieträger
Öl
Heizungsart
Ofen, Zentralheizung
Details
Objektbeschreibung
SIE WÜNSCHEN SICH EIN GERÄUMIGES UND VOLL UNTERKELLERTES EINFAMILIENHAUS MIT 5 ZIMMERN?
EINE SÜDWEST-TERRASSE IST IHNEN WICHTIG?
SIE HABEN EINE FAMILIE UND BENÖTIGEN ZWEI KINDERZIMMER?
SIE BENÖTIGEN EITERE BÜRO-RÄUME FÜR HOMEOFFICE?
SIE WÜNSCHEN SICH EINEN HOBBYRAUM IM UNTERGESCHOSS?
ZWEI...
Ausstattung
- Amtsgericht Schwabach, Grundbuch Röttenbach, Band 31, Blatt 1159,
Flur. Nr. 148/12, Gebäude-/Freifläche mit 923 m²
- alle Erschließungskosten sind abgerechnet
- Grundstücksentwässerung in den städtischen Kanal
- Haus ist interessant für den Eigennutzer wie für den Kapitalanleger
- EFH gesamt mit 149 m²...
Weitere Informationen
Allgemeines & Besichtigungen
Hier haben Sie die besondere Gelegenheit ein voll unterkellertes Einfamilienhaus mit einer 6 Zimmer Wohnung im Erd- und Dachgeschoss zusammen mit einem Hobbyraum im Untergeschoss mit 149 m² Wohnfläche im beliebten Röttenbach – Mühlstetten zu erwerben.
Dieses Einfamilienhaus aus...
Anbieter der Immobilie

Online-ID: 2mlty5z
Referenznummer: 03 Kilian EFH Röttenbach_149qm_
Finde Angebote wie dieses
Hier geht es zu unserem Impressum, den Allgemeinen Geschäftsbedingungen, den Hinweisen zum Datenschutz und nutzungsbasierter Online-Werbung.