
RICHERT & OERTEL IMMOBILIEN GMBH
Frau Jenny Völkel
035 ···
Nr. anzeigenPreise & Kosten
Provision für Mieter
laufzeitabhängig inkl. MwSt. Weitere Informationen siehe Provisionshinweis.
Abschreibung/Anlage
Denkmalschutz-Afa
Warum sehe ich diese Anzeige? – Du siehst diese Anzeige basierend auf Ihrer Navigation auf unserer Website und den Suchkriterien, die du verwendet hast.
Lage
Die Gewerbeeinheit befindet sich in der Dresdner Innenstadt, unmittelbar im Musikerviertel, etwa 10 Gehminuten von der Altstadt entfernt. Die zentrale Lage bedingt eine ausgezeichnete Anbindung an den öffentlichen Nahverkehr, so befinden sich die Straßenbahn- und S-Bahn- Haltestellen unmittelbar in Gebäudenähe. Der...
Büro-/Praxisfläche
Bezug
01.01.2026
Details
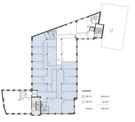
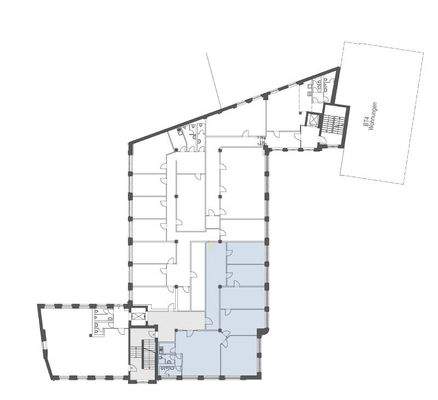
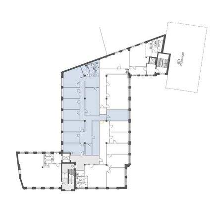
Objektbeschreibung
Das Areal setzt sich aus vier in Reihe gebauten Gebäudeteilen zusammen. Die Gebäude sind über die Hinterhofstrukturen miteinander verbunden. Das Baujahr ist auf ca. 1901 datierbar und äußert sich demgemäß durch eine klar strukturierte symmetrische Fassade mit platzseitigen Balkonen. Im Gebäudeensemble befindet sich ein...
Ausstattung
- Bürofläche in zentraler Lage direkt am Wettiner Platz
- flexible Gestaltungsmöglichkeiten (z.B. Großraum, Einzel- oder Teambüro)
- getrennte Sanitäreinheiten für Damen und Herren
- zwei Teeküchen vorhanden
- großer Meetingraum
- drei Stellplätze in der Tiefgarage separat anmietbar
- Personenaufzug im...
Weitere Informationen
Provisionshinweis
laufzeitabhängig inkl. MwSt.
Bei Mietvertragsabschluss entsteht unsererseits gegenüber dem Mieter ein Honoraranspruch in Höhe von:
Honorarfrei: ab einer Mietvertragslaufzeit von 60 Monaten
0,6 Nettokaltmieten: bei einer Mietvertragslaufzeit zwischen 36 und weniger als 60 Monaten
1,19...
Anbieter der Immobilie
RICHERT & OERTEL IMMOBILIEN GMBH
Tiergartenstraße 46, 01219 Dresden
Online-ID: 2mlv75n
Referenznummer: R_O 23772
Finde Angebote wie dieses
Hier geht es zu unserem Impressum, den Allgemeinen Geschäftsbedingungen, den Hinweisen zum Datenschutz und nutzungsbasierter Online-Werbung.