
Debiko International Kft.
Herr/Frau József Molnár
003 ···
Nr. anzeigenPreise & Kosten
Verhandlungsbasis
Provision für Käufer
provisionsfrei
Das Haus
Kategorie
Einfamilienhaus
Baujahr
1980
Bezug
Kurzfristig
Derzeitige Nutzung
frei
Energie & Heizung
Warum sehe ich diese Anzeige? – Du siehst diese Anzeige basierend auf Ihrer Navigation auf unserer Website und den Suchkriterien, die du verwendet hast.
Gebäudetyp
Wohngebäude
Weitere Energiedaten
Haustyp
Massivhaus
Energieträger
Gas
Heizungsart
Zentralheizung
Details
Weitere Informationen
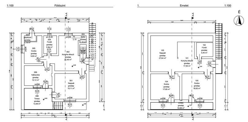
Einfamilienhaus Vonyarcvashegy
In einerruhigen Sackgasse von Vonyarcvashegy biete ich ein renoviertes Einfamilienhaus der auch für zwei Generationen geeignet ist, zum Verkauf an! 20 Minuten vom Strand in Vonyarc entfernt!
Hauptmerkmale:
Grundstücksfläche: 707 m2 ebene, gepflegte Garten
Wohnfläche: 184...
Anbieter der Immobilie
Debiko International Kft.
Petöfi Sándor utca 9, 8710 BALATONSZENTGYÖRGY
Online-ID: 2mlvg59
Finde Angebote wie dieses
Hier geht es zu unserem Impressum, den Allgemeinen Geschäftsbedingungen, den Hinweisen zum Datenschutz und nutzungsbasierter Online-Werbung.