
ohne-makler.net - Immobilien selbst vermarkten
Privat von Hr. Hermes
Kontaktiere den Anbieter schriftlich, es ist keine Telefonnummer hinterlegt.
Preise & Kosten
Provision für Käufer
provisionsfrei
Lage
Man wohnt in ruhiger Anliegerstraße, nur wenige Minuten von Supermärkten und dem Naturschutzgebiet entfernt, sowie nahe am S-Bahnhof Neuwiedenthal.
Hausbruch bietet wegen der kurzen Entfernung zur A7 und dem S-Bahn Anschluss eine sehr verkehrsgünstige Lage südlich der Elbe und gleichzeitig eine hohe Wohnqualität...
Die Wohnung
Kategorie
Maisonette
Wohnungslage
Erdgeschoss
Bezug
nach Absprache
Derzeitige Nutzung
vermietet
Wohnanlage
Energie & Heizung
Warum sehe ich diese Anzeige? – Du siehst diese Anzeige basierend auf Ihrer Navigation auf unserer Website und den Suchkriterien, die du verwendet hast.
Energieausweistyp
Verbrauchsausweis
Gebäudetyp
Wohngebäude
Endenergieverbrauch
127,00 kWh/(m²·a) - Warmwasser enthalten
Weitere Energiedaten
Energieträger
Gas
Heizungsart
Zentralheizung
Details
Objektbeschreibung
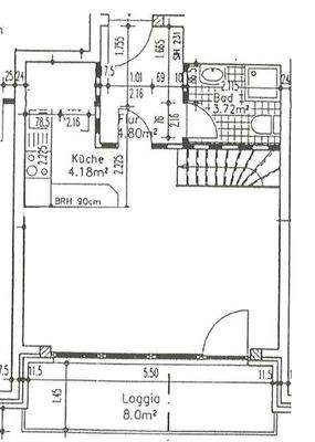
Die helle, freundliche 2,5 Zimmer Erdgeschosswohnung befindet sich in einem Mehrfamilienhaus. Die Wohnfläche von 65 m² wird auf 2 Etagen verteilt. Das Gebäude wurde 1994 erbaut und hat eine Rotklinker-Fassade. Das Haus ist mit einer in gutem Zustand befindlichen Gaszentralheizung ausgestattet. Die gesamte Wohnanlage besteht...
Ausstattung
Balkon, Terrasse, Garten, Keller, Vollbad, Einbauküche, Gäste-WC, Laminat, Fliesen
Bemerkungen:
Die im Erdgeschoss gelegene ca. 65 m² große Souterrain Maisonette Wohnung überzeugt durch ihren klaren und gut durchdachten Grundriss. Beim Betreten der Wohnung gelangen Sie links in das ca. 4 m² große fensterlose...
Preisinformation
1 Stellplatz
Weitere Informationen
Sonstiges
Heizungsart: Zentralheizung
Energieträger: Gas
Makleranfragen nicht erwünscht. Nach § 7 UWG sind unaufgeforderte Kontaktaufnahmen durch Makler ohne ausdrückliche Einwilligung des Empfängers verboten!
ohne-makler (OM) ist weder Anbieter noch Vermittler der Immobilie. OM betreibt eine Plattform...
Anbieter der Immobilie
ohne-makler.net - Immobilien selbst vermarkten
Humboldtstr. 25 A, 21509 Glinde
Privat von Hr. Hermes
Dein Ansprechpartner
Kontaktiere den Anbieter schriftlich, es ist keine Telefonnummer hinterlegt.
Online-ID: 2mlx35m
Referenznummer: 412521
Finde Angebote wie dieses
Hier geht es zu unserem Impressum, den Allgemeinen Geschäftsbedingungen, den Hinweisen zum Datenschutz und nutzungsbasierter Online-Werbung.