
Neumann Immobilienagentur & Bauerhaltungsges. mbH & Co.KG
Herr Karl Heinz Neumann
084 ···
Nr. anzeigenPreise & Kosten
Provision für Käufer
provisionsfrei
Lage
Das Objekt befindet sich im Ortsteil Zandt der Gemeinde Denkendorf im Landkreis Eichstätt.
Die Lage zeichnet sich durch eine ruhige Wohnsiedlung mit familienfreundlichem Umfeld und einer guten Infrastruktur aus.
Zandt liegt in der Region Altmühltal, die durch ihre landschaftliche Vielfalt, Freizeitmöglichkeiten und...
Das Haus
Kategorie
Reihenmittelhaus
Baujahr
2025
Energie & Heizung
Warum sehe ich diese Anzeige? – Du siehst diese Anzeige basierend auf Ihrer Navigation auf unserer Website und den Suchkriterien, die du verwendet hast.
Energieausweistyp
Bedarfsausweis
Gebäudetyp
Wohngebäude
Baujahr laut Energieausweis
2025
Wesentliche Energieträger
Strom
Gültigkeit
06.10.2025 bis 05.10.2035
Effizienzklasse
A
Endenergiebedarf
36,90 kWh/(m²·a)
Weitere Energiedaten
Haustyp
Massivhaus
Energieträger
Elektro
Heizungsart
Fußbodenheizung
Details
Objektbeschreibung
Zum Verkauf steht ein hochwertig geplanter Dreispänner mit moderner, energieeffizienter Ausstattung in ruhiger Lage des Denkendorfer Ortsteils Zandt (PLZ 85095).
Die in Massivziegelbauweise errichteten Häuser werden schlüsselfertig gemäß aktuellem Gebäudeenergiegesetz (GEG) erstellt.
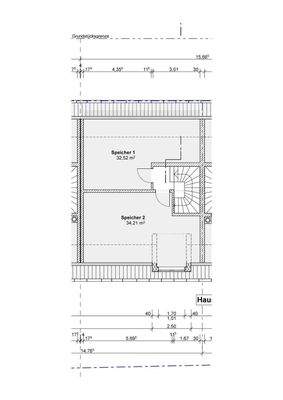
Objektdetails:
Die drei voll...
Weitere Informationen
Kurzübersicht Baubeschreibung
Haus in Massivbauweise, Kunststofffenster mit 3-fach Isolierverglasung, Hauseingangstüre in Aluminium, Heizung Luft-Wärmepumpe
Sonstiges
Fa. Neumann Immobilienagentur & Bauerhaltungsgesellschaft mbH & Co. KG
Unser oberstes Ziel ist es, eine angenehme und gesunde...
Online-ID: 2mlxn5j
Referenznummer: RMHW 1
Finde Angebote wie dieses
Hier geht es zu unserem Impressum, den Allgemeinen Geschäftsbedingungen, den Hinweisen zum Datenschutz und nutzungsbasierter Online-Werbung.