Version: 8.24.0Navigation überspringen
329.000 €
6 Zimmer  •  150 m²  •  811 m² Grundstück
Immowelt logo

Stadthaus zum Kauf
329000 €
2.193 €/m²
6 Zimmer  •  150 m²  •  811 m² Grundstück

Stadt-Villa mit Altbau-Charme, nah zur City und zum Schlossgarten, mit großem Grundstück und Garage

In citynaher Lage von Cuxhaven - am Südwestrand der Innenstadt - bieten wir Makler für nur € 329.000,- zzgl. 3,57 % Courtage ein solides, gepflegtes und kurzfristig beziehbares Einfamilienhaus in Form einer repräsentativen Stadtvilla mit 6 Zimmern und mit dem Charme eines Altbaus von 1933/34 an. Die insgesamt ca. 146 m² Wohnfläche (ohne Gewähr) verteilen sich UNTEN (also im Erdgeschoss bzw. Hochparterre) auf ein Wohnzimmer, eine massiv gebaute Veranda als Esszimmer, ein Schlafzimmer, eine große Küche, ein Duschbad/WC und eine Diele und OBEN (also im Obergeschoss bzw. Dachgeschoss mit nur wenigen Dachschrägen) auf 3 weitere Zimmer (als Schlafzimmer, als Kinder- oder Gäste- oder Arbeitszimmer), ein Badezimmer mit Wanne, einen separaten WC-Raum (neben dem Bad), auf einen Flur und einen Balkon. Außerdem gibt es vielleicht die Möglichkeit, im Dachgeschoss auf der Veranda eine Dachterrasse einzurichten. Ganz oben im Dachboden hat das Haus eine große Ausbaureserve für mehr Wohnräume oder zumindest für wohnlich wirkende Abstellräume, wie man auf den Fotos sehen kann. Eine Treppe vom Ober- bzw. Dachgeschoss zum Dachboden ist schon vorhanden. Das Haus ist vollständig unterkellert. In den großen Keller ist eine Garage integriert. Zwischen dem Keller und dem Garten und auch zwischen der Veranda und dem Garten gibt es jeweils eine massive Außentreppe. Trotz der citynahen Lage am Südwestrand der Innenstadt ist das Grundstück mit 811 m² relativ groß und bietet nach hinten heraus einen großen Garten. Das Hausgrundstück Nr. 84 liegt in einem Bereich, für den es keinen amtlichen Bebauungsplan gibt, was für einen offiziellen Ausbau des großens Dachboden zu Wohnraum mit Bauantrag und Baugenehmigung vorteilhaft sein könnte. Die Frage, ob man das große Grundstück des Hauses Nr. 84 hinten im Garten, also im nördlichen bis nordöstlichen Grundstücksbereich, noch mit einem weiteren Wohngebäude oder mit einem Nebengebäude bebauen könnte oder ob man zumindest das bestehende Gebäude nach hinten erweitern könnte, wäre mit dem Bauamt zu klären, denn in einem Gebiet, für das es keinen Bebauungsplan gibt, orientiert sich die zulässige Bebauung gemäß § 34 BauGB (Baugesetzbuch) an der Nachbarschaft, und hierfür ist insbesondere die große Bebauung auch hinten auf dem Grundstück mit den Hausnummern 80 und 80A und 82 (also: rechts bzw. östlich von Nr. 84) interessant. Bei einem Kaufpreis von € 329.000,- und bei einem amtlichen Bodenrichtwert von € 137.870,- und bei ca. 146 m² Wohnfläche (ohne Gewähr) würden Sie hier nur ca. 1.300,- €/m² Wohnfläche für die Bausubstanz bzw. für den Gebäudeanteil im Kaufpreis zahlen! Für eine BESICHTIGUNG vereinbaren Sie bitte mit Herrn Uppendahl unter 01 77 - 36 88 7 43 einen Termin!

Merkmale

  • Bezug: sofort
  • 2 Geschosse
  • 811 m² Grundstück
  • Keller
  • Garage
  • Gäste-WC
  • Balkon
  • Garten

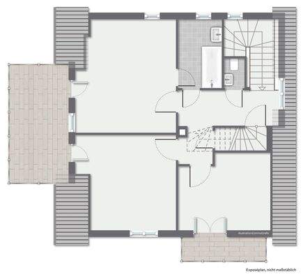
Grundrisse

Grundrisse
1 / 5

Realisiere Dein Projekt

Bausubstanz und Energie

Energieausweis

H
  • Baujahr1933
  • Zustand der ImmobilieAltbau (bis 1945), Massivhaus, Gepflegt
  • HeizungsartZentralheizung
  • EnergieträgerGas
Immowelt logo

Preisdetails

Kaufpreis
329000 €
2.193,33 €/m²
Provision für Käufer
3,57 % inkl. MwSt.
Geschätzte Gesamtkosten
363.775 €1
Kaufpreis
329.000 €
Notarkosten (1,5%)
4.935 €
Grunderwerbsteuer (5%)
16.450 €
Provision für Käufer (3,57%)
11.745 €
Grundbucheintrag (0,5%)
1.645 €
1Der angezeigte Wert ist eine automatisch berechnete Schätzung von immowelt.
2Bei den Angaben handelt es sich um ortsübliche Werte. Individuelle Kosten können abweichen.

Lage

address-icon
Südersteinstraße 84Cuxhaven (27472)
Zusätzlich zur Architektur, zur Ausführung, zur Ausstattung und zur Aussicht hat die zentrumsnahe Lage dieses Hauses südwestlich der Innenstadt (CUXHAVEN-CITY) mit einem wohnlichen Umfeld viele Vorteile. Wenige Worte reichen dafür gar nicht aus. Der Schlossgarten als Parkanlage mit dem Ritzebütteler Schloss, die Nordersteinstraße als Fußgängerzone und Einkaufsstraße, der Hafenbereich (zum Beispiel: Alter Fischereihafen, demnächst als neues Zentrum für Handel, Gastronomie und Hotels), die Hauptpost, der Bahnhof mit dem zentralen Omnibusbahnhof, das Schulzentrum, das neue Hallenbad, der Wochenmarkt und das Krankenhaus (Helios-Klinik), die ALTE LIEBE (ein bekannter Aussichtspunkt am Weltschifffahrtsweg) und ab Frühjahr 2026 auch wieder eine große Einkaufsmöglichkeit von KAUFLAND im ehemaligen REAL-Markt-Gebäude sind relativ nah und auch zu Fuß bzw. mit dem Fahrrad gut erreichbar. Den Grünstrand der Grimmershörnbucht und die Sandstrände von Duhnen, Döse und Sahlenburg können Sie auch mit Linienbussen erreichen, deren Haltestellen sich in fußläufiger Nähe befinden. Das Nordseebad CUXHAVEN ist mit seinen rund 49.000 Einwohnern die Stadt an der nördlichsten Spitze von Niedersachsen in einer fast schon halbinselartig zu nennenden Lage zwischen den Mündungen von Elbe und Weser in die Nordsee. Cuxhaven ist Richtung BREMEN über die Autobahn A 27 und Richtung HAMBURG über die Bundesstraße B 73 bzw. ab Stade über die Autobahn A 26 gut erreichbar. In beide Richtungen gibt es auch eine Bahnanbindung. Cuxhaven bietet die Vorteile von STADT und STRAND! Wo gibt es diese attraktive Kombination in dieser direkten Nähe zueinander sonst noch an der deutschen Nordseeküste? Das Hausgrundstück Nr. 84 liegt in einem Bereich, für den es keinen amtlichen Bebauungsplan gibt, was für einen offiziellen Ausbau des großens Dachboden zu Wohnraum mit Bauantrag und Baugenehmigung vorteilhaft sein könnte. Die Frage, ob man das große Grundstück des Hauses Nr. 84 hinten im Garten, also im nördlichen bis nordöstlichen Grundstücksbereich, noch mit einem weiteren Wohngebäude oder mit einem Nebengebäude bebauen könnte oder ob man zumindest das bestehende Gebäude nach hinten erweitern könnte, wäre mit dem Bauamt zu klären, denn in einem Gebiet, für das es keinen Bebauungsplan gibt, orientiert sich die zulässige Bebauung gemäß § 34 BauGB (Baugesetzbuch) an der Nachbarschaft, und hierfür ist insbesondere die große Bebauung auch hinten auf dem Grundstück mit den Hausnummern 80 und 80A und 82 (also: rechts bzw. östlich von Nr. 84) interessant.

Weitere Informationen

Sonstiges BESICHTIGUNG? Wer zu spät kommt, den bestraft das Leben! Wann wollen Sie sich diese sehenswerte Stadtvilla ansehen, bevor Ihnen womöglich ein anderer Interessent zuvorkommt? Vereinbaren Sie telefonisch unter 01 77 - 36 88 7 43 oder 0 47 21 - 3 46 06 mit Herrn Uppendahl einen Besichtigungstermin, nachdem Sie die Informationen gelesen haben und nachdem Sie sich die vielen Fotos und die Grundrisse angesehen haben, die Ihnen schon jetzt einen umfassenden Eindruck von dieser Immobilie vermitteln. Wir wären Ihnen jedoch sehr dankbar, wenn Sie möglichst schon vor einer Besichtigung mit uns Maklern mit einem Kreditinstitut Ihrer Wahl - idealerweise mit Ihrer Hausbank - den für Sie maximal möglichen Finanzierungsrahmen klären. ERWERBSNEBENKOSTEN? Als Käufer zahlen Sie für dieses Haus zusätzlich zum Kaufpreis in Höhe von € 329.000,- auch 5,0 % als niedersächsische Grunderwerbsteuer und zusammen ca. 2 % bis 3 % für Notar- und Grundbuchamtsgebühren sowie eine MAKLERCOURTAGE in Höhe von brutto 3,57 % (entspricht netto 3,0 % zuzüglich 19 % MwSt.) als Hälfte der Gesamtprovision. Die Maklerprovision ist unabhängig von der Fälligkeit des Kaufpreises mit dem rechtswirksamen Abschluss des Kaufvertrages verdient. In dem genannten Kaufpreis ist das 811 m² große Eigentumsgrundstück mit einem amtlichen Bodenrichtwert von € 137.870,-entsprechend 170,- €/m² bereits enthalten. Wie in der Stadt und im Landkreis Cuxhaven allgemein üblich, brauchen Sie hier also keine Erbpacht zu zahlen. Das Angebot ist freibleibend und unverbindlich und basiert insbesondere auf Angaben und Unterlagen der Verkäuferin und des Bauamtes. Die hier gemachten Angaben sind unverbindliche Beschreibungen. Sie stellen keine zugesicherten Eigenschaften dar. Wir haften als Makler nicht für Irrtümer, Eingabefehler und Datenübermittlungsfehler. Entscheidend sind allein die Vereinbarungen im Kaufvertrag. Dies gilt auch für Flächenangaben und für Maßstäblichkeit und Maßhaltigkeit in Plänen und Zeichnungen. Die Wohn- und Nutzflächen basieren auf den Flächenangaben und Maßen aus einer alten Bauzeichnung. Ein zwischenzeitlicher Verkauf bleibt vorbehalten. Eine Übernahme dieses Anwesens durch den Käufer ist auf Wunsch auch sehr kurzfristig möglich. PROSPEKT? Wir bitten Sie, uns bei Ihrer Anfrage nicht nur Ihren vollständigen Namen und Ihre E-Mail-Adresse, sondern auch Ihre vollständige BRIEFPOSTANSCHRIFT zu nennen, damit wir Ihnen bei konkretem Interesse noch ausführlichere Unterlagen senden können und damit wir wissen, mit wem wir es als Kunden zu tun haben., Und vergessen Sie bitte nicht, Ihre Telefonnummer anzugeben! Stichworte 1 Garage im Keller vorhanden, Anzahl der Schlafzimmer: 4, Anzahl der Badezimmer: 2, Anzahl der separaten WCs: 1, Anzahl der Balkone: 1, Bundesland: Niedersachsen, 2 Etagen (Hochkeller und Erdgeschoss als Hochparterre und Ober- bzw. Dachgeschoss und ausbaufähiger Dachboden), modernisiert: 2023 (neue Gaszentralheizung) Sonstiges/Wohnen: Dachboden, Hobbyraum Sonstiges: frei werdend

Weitere Services

Lust auf eine Besichtigung?
Eine Frage zur Immobilie?
Nachricht hinzufügen
Mit der Nutzung der oben angegebenen Telefonnummer oder durch Klicken auf „Kontaktieren“ akzeptierst Du die Allgemeinen Nutzungsbedingungen, denen Du jederzeit widersprechen kannst. Weitere Informationen zum Datenschutz

Über den Anbieter

Strichweg 90, 27476 Cuxhaven
partner badge
Partnerschaft
Herr Ernst UppendahlDein Kontakt

Weitere Unterlagen

Online-ID: 2mlxu55
Referenznummer: SSS-84-329
Olaf Grutzpalk Immobilien
Olaf Grutzpalk Immobilien
Bewertung: 4,9 von 5 Sternen
Nachricht hinzufügen
Mit der Nutzung der oben angegebenen Telefonnummer oder durch Klicken auf „Kontaktieren“ akzeptierst Du die Allgemeinen Nutzungsbedingungen, denen Du jederzeit widersprechen kannst. Weitere Informationen zum Datenschutz
Wie zufrieden bist du mit dieser Seite (nicht mit der Immobilie selbst)?