
Immotreff
Herr Karlheinz Radschinsky
004 ···
Nr. anzeigenPreise & Kosten
Kaution
726,00
Provision für Käufer
3 % zzgl. MwSt.
Lage
Hainichen liegt im Tal der kleinen Striegis, unmittelbar am Fuße des Erzgebirges. Es ist ein liebenswertes Städtchen. Die neu entstehenden Radwege ermöglichen eine gute touristische Erschließung des Gebietes. Auch im großen Striegistal sind umfangreiche Wanderwege vorhanden, durch die das landschaftlich reizvolle Striegistal...
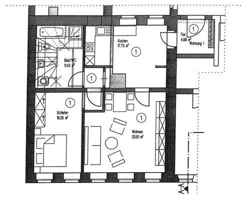
Die Wohnung
Wohnungslage
1. Geschoss
Bezug
sofort
Wohnanlage
Energie & Heizung
Warum sehe ich diese Anzeige? – Du siehst diese Anzeige basierend auf Ihrer Navigation auf unserer Website und den Suchkriterien, die du verwendet hast.
Energieausweis: für diesen Gebäudetyp nicht notwendig
Weitere Energiedaten
Energieträger
Gas
Heizungsart
Zentralheizung
Details
Objektbeschreibung
Stilvolle 2-Raumwohnung mit hochwertiger Ausstattung und Sauna im Haus.
Diese großzügig geschnittene 2-Raumwohnung befindet sich im 1. Obergeschoss eines sanierten und sehr gepflegten Mehrfamilienhauses. Über einen separaten Eingang gelangen Sie bequem in Ihr neues Zuhause, das mit einer durchdachten Raumaufteilung und...
Ausstattung
- hochwertiger Designerboden
- getrennte Dusche und Badewanne
- separater Eingang
- Sauna und WA-Raum im Keller
Weitere Informationen
Sonstiges
Um eine schnelle und unkomplizierte Terminvereinbarung zu treffen, können Sie uns gern unter folgenden Rufnummern von 8:00 Uhr bis 18:00 erreichen.
Tel.: 0371 / 31 31 51
Funk: 0172 / 79 88 500
Sie können natürlich auch auf unserer Homepage sich über andere Angebote...
Anbieter der Immobilie

Immotreff
Walter-Oertel-Straße 24, 09112 Chemnitz
Online-ID: 2mlyc5c
Referenznummer: IC102022
Finde Angebote wie dieses
Hier geht es zu unserem Impressum, den Allgemeinen Geschäftsbedingungen, den Hinweisen zum Datenschutz und nutzungsbasierter Online-Werbung.