

Walter Schneider Immobilien GmbH
Herr/Frau Markus Schneider
176 ···
Nr. anzeigenPreise & Kosten
Provision für Käufer
3 % zzgl. Mwst. vom Kaufpreis
Lage
Kirchheim an der Weinstrasse ist ein idyllischer Weinort im Herzen der Pfalz und zählt zu den begehrten Wohnlagen entlang der Deutschen Weinstrasse.
Die charmante Gemeinde vereinigt ländliche Ruhe mit guter Infrastruktur. Kindertagesstätte, Grundschule, Einkaufsmöglichkeiten und regionale Gastronomie sind direkt vor...
Das Haus
Kategorie
Einfamilienhaus
Baujahr
1965
Energie & Heizung
Warum sehe ich diese Anzeige? – Du siehst diese Anzeige basierend auf Ihrer Navigation auf unserer Website und den Suchkriterien, die du verwendet hast.
Weitere Energiedaten
Energieträger
Gas
Heizungsart
offener Kamin
Details
Objektbeschreibung
Traumhaftes Zweifamilienhaus in Toplage von Kirchheim an der Weinstrasse !!
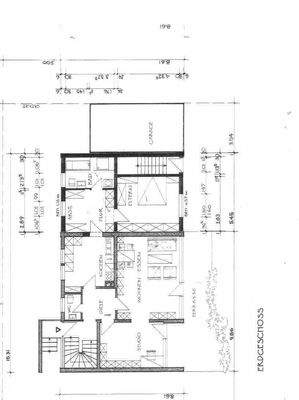
Erdgeschoss mit ca.110 m² Wohnfläche
Bereits beim Betreten des Hauses spüren Sie die besondere Atmosphäre dieses Domizils. Das großzügige Wohn- und Esszimmer bildet das Herzstück des Erdgeschosses. Großzügige Fensterfronten sorgen für...
Ausstattung
Die Immobilie wurde in den Jahren 2017/2018 umfassend renoviert und in den Folgejahren regelmäßig modernisiert und instandgehalten.
Erdgeschoss:
- offener Wohn- und Essbereich
- angrenzendes Arbeitszimmer- auch individuell nutzbar z.B. als Gästezimmer oder Hobbyraum
- hochwertige Einbauküche
-...
Weitere Informationen
Sonstiges
Das ursprüngliche Baujahr des Hauses liegt im Jahr 1965. Bereits 1975 wurde die Immobilie durch einen aufwendigen und großzügigen Anbau erweitert. Die Wohnfläche konnte dadurch von ca. 110 m² auf rund 185 m² ausgebaut werden. Der Anbau wurde architektonisch geschickt integriert und verleiht dem Haus ein...
Anbieter der Immobilie
Walter Schneider Immobilien GmbH
Gartenstr. 6, 67258 Heßheim

Online-ID: 2mm235t
Referenznummer: 2025-01626
Finde Angebote wie dieses
Hier geht es zu unserem Impressum, den Allgemeinen Geschäftsbedingungen, den Hinweisen zum Datenschutz und nutzungsbasierter Online-Werbung.