

DAHLER Potsdam | Berlin-Wannsee | Kleinmachnow
Herr Patrik Zimmermann
033 ···
Nr. anzeigenPreise & Kosten
Provision für Käufer
7,14 inkl. MwSt. bezogen auf den beurkundeten Kaufpreis
Lage
Zehn Kilometer südwestlich von der Landeshauptstadt Potsdam liegt der Ort Ferch und zieht sich am Ufer des Schwielowsees entlang. Südlich des Schwielowsees empfängt das Malerdorf, die "Perle am Schwielowsee", seine Gäste. Das einstige Fischerdorf ist vor allem für sein Museum der Havelländischen Malerkolonie bekannt. Den...
Das Haus
Kategorie
Mehrfamilienhaus
Baujahr
1913
Energie & Heizung
Warum sehe ich diese Anzeige? – Du siehst diese Anzeige basierend auf Ihrer Navigation auf unserer Website und den Suchkriterien, die du verwendet hast.
Energieausweis: für diesen Gebäudetyp nicht notwendig
Weitere Energiedaten
Energieträger
Gas
Heizungsart
Zentralheizung
Details
Objektbeschreibung
Das "Landhaus Brunner", erbaut im Jahr 1913 als Wochenendhaus für den Geheimrat Brunner, befindet sich in einer der malerischsten Gegenden von Schwielowsee. Vor 18 Jahren erwarben die jetzigen Eigentümer dieses historische Anwesen und führten eine liebevolle Kernsanierung durch, bei der die zahlreichen historischen...
Ausstattung
. Baujahr 1913 als Wochenendhaus für den Geheimrat Brunner
. Vor 18 Jahren umfassend kernsaniert inklusive aller Leitungen
. Historische Stilelemente sorgfältig erhalten und restauriert
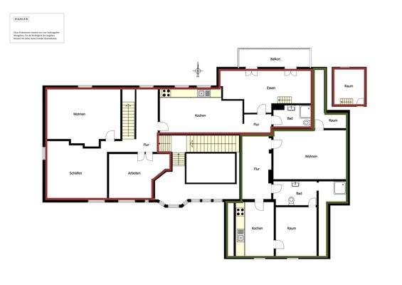
. Gesamtwohnfläche von ca. 527 m², verteilt auf vier Wohneinheiten
. Zusätzliche Gewerbeeinheit von ca. 138,85 m²
. Ca. 66.123...
Preisinformation
Ist-Mieteinnahmen pro Jahr: 66.123,84 EUR
Weitere Informationen
Sonstiges
Ihre Werte sind bei uns in besten Händen
DAHLER ist auf die Vermittlung hochwertiger Wohnimmobilien in bevorzugten Lagen spezialisiert. Seit über 30 Jahren wird unser Unternehmen von Kirsten und Björn Dahler geführt und setzt mit Innovationskraft und Servicequalität Maßstäbe in der Branche. Unsere mehr als...
Anbieter der Immobilie

Online-ID: 2mm3654
Referenznummer: D-POT8342-7-LIV
Finde Angebote wie dieses
Hier geht es zu unserem Impressum, den Allgemeinen Geschäftsbedingungen, den Hinweisen zum Datenschutz und nutzungsbasierter Online-Werbung.