
Scherf Profi Immobilien Service GmbH
Herr Norbert Scherf
065 ···
Nr. anzeigenPreise & Kosten
Provision für Käufer
provisionsfrei
Lage
Trier-Innenstadt Nähe Porta Nigra, unmittelbar am Krankenhaus der Barmherzigen Brüder bzw. dem Mutterhaus-Nord, eine zentrale Stadtlage nur wenige Gehminuten von der Fußgängerzone entfernt. Aus dieser verkehrsgünstigen Lage erreichen Sie in wenigen Gehminuten die Fußgängerzone/Innenstadt und haben eine gute...
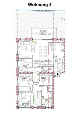
Die Wohnung
Bezug
Ende 2027
Wohnanlage
Energie & Heizung
Warum sehe ich diese Anzeige? – Du siehst diese Anzeige basierend auf Ihrer Navigation auf unserer Website und den Suchkriterien, die du verwendet hast.
Energieausweistyp
Bedarfsausweis
Gebäudetyp
Wohngebäude
Baujahr laut Energieausweis
2025
Wesentliche Energieträger
Luft/Wasser-Wärmepumpe
Gültigkeit
21.06.2025 bis 21.06.2035
Effizienzklasse
A+
Endenergiebedarf
14,00 kWh/(m²·a)
Weitere Energiedaten
Haustyp
KfW 40
Heizungsart
Fußbodenheizung, Luft-/Wasser-Wärmepumpe
Details
Objektbeschreibung
Altersgerechtes Wohnen im KFW 40 Energiesparhaus in Trier Nähe Porta Nigra - unmittelbar an den Krankenhäusern - Darlehen von 100.000 EUR ab 0,01 % Zins möglich.
Moderne Eigentumswohnungen in altersgerechter Ausführung im Energiesparhaus (KfW 40 Standard) in zentraler Innenstadtlage Trier mit moderner Technik, Aufzug und...
Ausstattung
Moderne Eigentumswohnungen in altersgerechter Ausführung im Energiesparhaus (KfW 40 Standard) in zentraler Innenstadtlage Trier mit moderner Technik, Aufzug und guter Ausstattung. In dieser exponierten Lage entstehen attraktive Eigentumswohnungen mit Aufzug und Tiefgarage, moderner Technik in altersgerechter Ausführung. Es...
Preisinformation
1 Tiefgaragenstellplatz, Kaufpreis: 30.000,00 EUR
Weitere Informationen
Sonstiges
Der Energieausweis liegt vor.
Dieser wird dem Interessenten vor dem Besichtigungstermin mit dem Exposé zur Verfügung gestellt.
Vereinbaren Sie einen Besichtigungs/Beratungstermin ! In Zusammenarbeit mit einem Finanzierungsvermittler sind wir Ihnen gerne bei der Gestaltung Ihrer Finanzierung behilflich...
Anbieter der Immobilie
Online-ID: 2mm6l5v
Referenznummer: ETNBTHEO103
Finde Angebote wie dieses
Hier geht es zu unserem Impressum, den Allgemeinen Geschäftsbedingungen, den Hinweisen zum Datenschutz und nutzungsbasierter Online-Werbung.