

Gründer Immobilien
Herr Ralf Gründer
049 ···
Nr. anzeigenPreise & Kosten
Provision für Käufer
provisionsfrei
Lage
Dörpen, eine idyllische Gemeinde im Emsland, bietet eine harmonische Mischung aus ländlicher Ruhe und moderner Infrastruktur. Mit über 5.000 Einwohnern hat Dörpen den idealen Maßstab zwischen einer überschaubaren Gemeinschaft und einem lebendigen Ort, in dem es sich gut leben lässt.
Dörpen liegt verkehrsgünstig an der...
Das Haus
Kategorie
Bungalow
Baujahr
2000
Bezug
nach Vereinbarung
Energie & Heizung
Warum sehe ich diese Anzeige? – Du siehst diese Anzeige basierend auf Ihrer Navigation auf unserer Website und den Suchkriterien, die du verwendet hast.
Energieausweistyp
Verbrauchsausweis
Gebäudetyp
Wohngebäude
Baujahr laut Energieausweis
2000
Wesentliche Energieträger
Erdgas leicht
Gültigkeit
16.03.2015 bis 15.03.2025
Effizienzklasse
C
Endenergieverbrauch
81,50 kWh/(m²·a) - Warmwasser enthalten
Weitere Energiedaten
Haustyp
Massivhaus
Energieträger
Gas
Heizungsart
offener Kamin
Details
Objektbeschreibung
Dieser gepflegte Winkelwalmdachbungalow aus dem Jahr 2000 befindet sich in absolut ruhiger Wohnlage am Ende einer Sackgasse in Dörpen - ein idealer Rückzugsort für Menschen, die Komfort, Ruhe und Platz schätzen. Die verkehrsgünstige Lage, die ausschließlich von Anliegern genutzt wird, sorgt für eine angenehme und...
Ausstattung
Die Wohnfläche von ca. 185 m² verteilt sich auf ein riesiges Wohnzimmer mit angrenzendem Wintergarten, eine große Küche, zwei ebenerdige Schlafzimmer, ein großzügiges Tageslichtbad mit Badewanne und ebenerdiger Dusche sowie ein zusätzliches Duschbad für Gäste. Alle Räume sind durchdacht geschnitten und bieten viel Wohnkomfort...
Preisinformation
2 Stellplätze
1 Garagenstellplatz
Weitere Informationen
Sonstiges
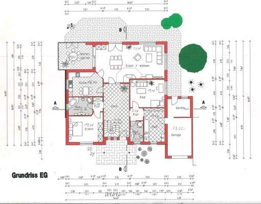
Wohnflächenaufteilung:
Erdgeschoss:
Diele ca. 20,24 m²
Flur I ca. 2,78 m²
Flur II ca. 3,27 m²
Wohn-/Esszimmer ca. 50,28 m²
Wintergarten ca. 19,26 m²
Küche ca. 16,40 m²
Schlafzimmer ca. 19,04 m²
Schlafzimmer ca. 19,49 m²
Badezimmer ca. 8,96 m²
Gäste-Bad ca. 5,45...
Anbieter der Immobilie
Gründer Immobilien
Haupstraße 97, 26892 Dörpen

Online-ID: 2mm7f53
Referenznummer: 8446#CMHriC
Finde Angebote wie dieses
Hier geht es zu unserem Impressum, den Allgemeinen Geschäftsbedingungen, den Hinweisen zum Datenschutz und nutzungsbasierter Online-Werbung.