
Vereinigte Volksbank Raiffeisenbank eG Immobilien Service
Frau Nina Wüllenweber
004 ···
Nr. anzeigenPreise & Kosten
Provision für Käufer
3,57 % vom Kaufpreis inkl. gesetzlicher MwSt. inkl. MwSt.
Lage
Die Immobilie liegt zentral in der Stadt Baumholder im Landkreis Birkenfeld. Geschäfte, Gastronomie und öffentliche Einrichtungen sind fußläufig erreichbar, während die umliegende Natur mit Wäldern und Hügeln des Hunsrücks direkt an die Stadt grenzt.
Das Renditeobjekt
Kategorie
Wohn- und Geschäftshaus
Baujahr
1953
Energie & Heizung
Warum sehe ich diese Anzeige? – Du siehst diese Anzeige basierend auf Ihrer Navigation auf unserer Website und den Suchkriterien, die du verwendet hast.
Energieausweistyp
Bedarfsausweis
Gebäudetyp
Wohngebäude
Baujahr laut Energieausweis
1953
Wesentliche Energieträger
OEL
Gültigkeit
18.02.2020 bis 17.02.2030
Effizienzklasse
F
Endenergiebedarf
173,90 kWh/(m²·a)
Details
Objektbeschreibung
Im Erdgeschoss erwartet Sie ein großzügiger Geschäftsraum, der durch große Fenster nicht nur viel Tageslicht hereinlässt, sondern auch als einladendes Schaufenster dient.
Der große Verkaufsraum ist ideal für Ihre Geschäftsideen und verfügt über einen separaten Bürobereich, der Ihnen die nötige Privatsphäre für...
Ausstattung
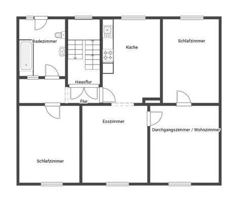
Raumaufteilung Wohnung Obergeschoss:
- Flur
- Badezimmer
- Schlafzimmer
- Küche offen zum Esszimmer
- Durchgangszimmer (Wohnzimmer)
- Schlafzimmer
Raumaufteilung Wohnung Dachgeschoss:
- Flur
- Badezimmer
- Schlafzimmer
- Küche mit Essbereich (Durchgangsraum)
- Wohnzimmer
-...
Weitere Informationen
Stichworte
Wohnfläche: 180,00 m², Nutzfläche: 159,84 m², Anzahl Balkone: 1, Anzahl der Wohneinheiten: 2, Anzahl der Gewerbeeinheiten: 1
Anbieter der Immobilie
Vereinigte Volksbank Raiffeisenbank eG Immobilien Service
Schlossplatz 2, 55469 Simmern
Online-ID: 2mm7r5r
Referenznummer: 2-1711
Finde Angebote wie dieses
Hier geht es zu unserem Impressum, den Allgemeinen Geschäftsbedingungen, den Hinweisen zum Datenschutz und nutzungsbasierter Online-Werbung.