
DAHLER Mainz c/o Fischtorplatz Immobilien GmbH
Herr David Demmer
004 ···
Nr. anzeigenPreise & Kosten
Provision für Käufer
5,95 % bezogen auf den Kaufpreis inkl. MwSt.
Abschreibung/Anlage
Denkmalschutz-Afa
Lage
Die idyllische Stadt Nierstein ist ein bedeutendes Mittelzentrum Rheinhessens und liegt direkt neben Oppenheim. Durch ihre Lage in der Rhein-Main-Region und der Metropolregion Rhein-Neckar ist die Stadt hervorragend an das Verkehrsnetz angebunden.
Die Stadt verfügt über eine ausgezeichnete Infrastruktur mit...
Büro-/Praxisfläche
Kategorie
Bürogebäude
Baujahr
1725
Bezug
nach Absprache
Energie & Heizung
Warum sehe ich diese Anzeige? – Du siehst diese Anzeige basierend auf Ihrer Navigation auf unserer Website und den Suchkriterien, die du verwendet hast.
Energieausweis: für diesen Gebäudetyp nicht notwendig
Weitere Energiedaten
Energieträger
Gas
Heizungsart
offener Kamin
Details
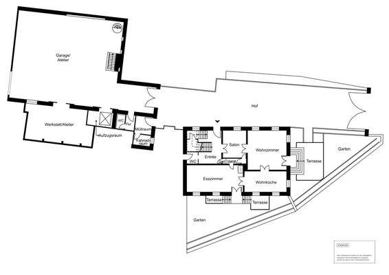
Objektbeschreibung
Dieses außergewöhnliche, denkmalgeschützte Anwesen befindet sich in bester Lage von Nierstein, unterhalb der Villa Spiegelberg, und eignet sich in idealer Weise für eine repräsentative gewerbliche Nutzung. Das zwischen 2015 und 2017 aufwendig kernsanierte Objekt steht auf dem historischen Gelände des ehemaligen Weinguts der...
Ausstattung
Wie bereits von außen über die historischen Schlossmauern erkennbar, beeindruckt dieses außergewöhnliche Anwesen im Inneren durch eine harmonische Verbindung aus historischer Bausubstanz und moderner, hochwertiger Ausstattung. Edle Fliesen in den Sanitärbereichen, aufwendig restaurierte Parkettböden, kunstvolle...
Preisinformation
3 Stellplätze
10 Garagenstellplätze
Weitere Informationen
Stichworte
Grundstücksfläche: 1.015,00 m², Anzahl der Schlafzimmer: 4, Anzahl der Badezimmer: 4, Anzahl der separaten WCs: 2, Anzahl Terrassen: 3, 3 Etagen
Sonstiges/Wohnen: Einliegerwohnung
Anbieter der Immobilie
Online-ID: 2mm7t5u
Referenznummer: DC-MAI-1328
Finde Angebote wie dieses
Hier geht es zu unserem Impressum, den Allgemeinen Geschäftsbedingungen, den Hinweisen zum Datenschutz und nutzungsbasierter Online-Werbung.