
Gernert Immobilien
Herr Volker Gernert
093 ···
Nr. anzeigenPreise & Kosten
Kaution
3 Monatskaltmieten 3.300,00 Euro
Warum sehe ich diese Anzeige? – Du siehst diese Anzeige basierend auf Ihrer Navigation auf unserer Website und den Suchkriterien, die du verwendet hast.
Lage
Randersacker liegt im unterfränkischen Weingebiet und zählt zu den besonders beliebten Wohnorten im unmittelbaren Umfeld von Würzburg. Die Nähe zur Universität Würzburg macht den Standort attraktiv für Berufstätige, Akademiker und Mitarbeitende des Hochschulumfelds.
Eine gute Anbindung an den öffentlichen...
Die Wohnung
Wohnungslage
2. Geschoss
Bezug
01.03.2026
Wohnanlage
Energie & Heizung
Warum sehe ich diese Anzeige? – Du siehst diese Anzeige basierend auf Ihrer Navigation auf unserer Website und den Suchkriterien, die du verwendet hast.
Weitere Energiedaten
Energieträger
Gas
Heizungsart
Zentralheizung
Details
Objektbeschreibung
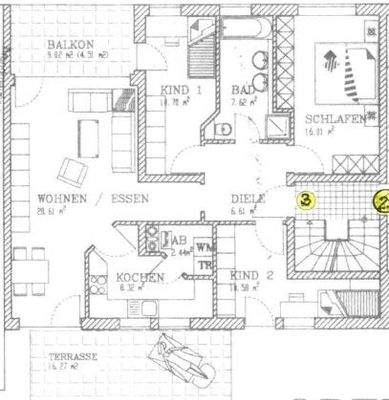
Diese moderne und großzügig geschnittene 4-Zimmer-Wohnung mit ca. 94 m² Wohnfläche befindet sich im zweiten OG eines gepflegten Wohnhauses in Randersacker. Die Wohnung überzeugt durch eine moderne Ausstattung, helle Räume und eine durchdachte Grundrissgestaltung, die vielfältige Nutzungsmöglichkeiten bietet.
Der...
Ausstattung
Die Wohnung verfügt über einen hochwertigen Parkettboden, der den Räumen eine warme und moderne Wohnatmosphäre verleiht. Das Badezimmer ist zeitgemäß ausgestattet und überzeugt durch eine Badewanne, sowie ein Fenster für natürliche Belichtung und Belüftung. Die deckenhohe Verfliesung unterstreicht den gepflegten und modernen...
Weitere Informationen
Die Wohnung eignet sich ideal für Paare oder kleine Familien, die Wert auf großzügiges Wohnen in ruhiger Umgebung legen und gleichzeitig von der Nähe zur Stadt profitieren möchten. Durch die durchdachte Raumaufteilung bietet sich die Wohnung auch für Berufstätige mit Homeoffice-Bedarf an.
Die Kombination aus moderner...
Anbieter der Immobilie
Gernert Immobilien
Marktbreiter Str. 40, 97199 Ochsenfurt
Online-ID: 2mm9c5y
Finde Angebote wie dieses
Hier geht es zu unserem Impressum, den Allgemeinen Geschäftsbedingungen, den Hinweisen zum Datenschutz und nutzungsbasierter Online-Werbung.