

VON POLL IMMOBILIEN Salzburg
Frau Katrin Kössler
+43 ···
Nr. anzeigenPreise & Kosten
Kaution
2 Bruttomonatsmieten
Warum sehe ich diese Anzeige? – Du siehst diese Anzeige basierend auf Ihrer Navigation auf unserer Website und den Suchkriterien, die du verwendet hast.
Lage
Mitten in der Natur und trotzdem eine sehr gute Infrastruktur machen Morzg zu einer der begehrtesten Gegenden in Salzburg.
Hier genießt man Lebensqualität!
Durch die Autobahnanbindung erreicht man in knapp zwei Stunden München und in drei Stunden Wien.
Eine Bushaltestelle befindet sich in der...
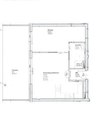
Die Wohnung
Wohnungslage
Erdgeschoss
Bezug
sofort
Wohnanlage
Energie & Heizung
Warum sehe ich diese Anzeige? – Du siehst diese Anzeige basierend auf Ihrer Navigation auf unserer Website und den Suchkriterien, die du verwendet hast.
Weitere Energiedaten
Heizungsart
Fußbodenheizung
Details
Objektbeschreibung
Diese exklusive 2-Zimmer-Wohnung mit ca. 50 m² überzeugt durch ihre ruhige Lage und eine großzügige 26 m² Südterrasse mit Garten - ideal zum Entspannen und Wohlfühlen.
Die hochwertige, vollständig ausgestattete Küche mit Granit-Arbeitsplatte sowie modernen Geräten (Backofen, Ceran-Kochfeld, Geschirrspüler, Mikrowelle...
Ausstattung
- 2 Zimmer
- Voll ausgestattete Einbauküche
- Begehbarer Kleiderschrank
- Elektrische Jalousien
- Großer Garten mit überdachter Terrasse
- Rasenroboter (Kein eigenständiges Mähen nötig)
- Beheizter Spiegel im Badezimmer (läuft nicht an)
- 1 Tiefgaragenstellplatz
-...
Preisinformation
1 Tiefgaragenstellplatz
Weitere Informationen
Stichworte
Anzahl der Schlafzimmer: 1, Anzahl der Badezimmer: 1, Anzahl Terrassen: 1, Balkon-Terrassen-Fläche: 26,00 m², Bundesland: Salzburg
Anbieter der Immobilie
VON POLL IMMOBILIEN Salzburg
Nonntaler Hauptstraße 59, 5020 Salzburg

Online-ID: 2mma55b
Referenznummer: KK11112025
Finde Angebote wie dieses
Hier geht es zu unserem Impressum, den Allgemeinen Geschäftsbedingungen, den Hinweisen zum Datenschutz und nutzungsbasierter Online-Werbung.