
Steindorff Immobilien GmbH
Herr Clemens Fürst
+43 ···
Nr. anzeigenPreise & Kosten
Provision für Käufer
3 % zzgl. 20% MwSt.
Die Wohnung
Wohnungslage
3. Geschoss (Dachgeschoss)
Bezug
ab sofort
Wohnanlage
Energie & Heizung
Warum sehe ich diese Anzeige? – Du siehst diese Anzeige basierend auf Ihrer Navigation auf unserer Website und den Suchkriterien, die du verwendet hast.
Heizwärmebedarf (HWB)
69,87 kWh/(m²·a)
Gesamtenergieeffizienz (fGEE)
1,48
Weitere Energiedaten
Energieträger
Elektro
Details
Objektbeschreibung
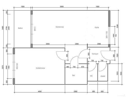
Zum Verkauf steht eine generalsanierte 2 Zimmerwohnung im obersten Liftstock.
Die Wohnung mit Baujahr 1972 wurde 2020 generalsaniert und offen gestaltet.
Vom Vorraum mit extra WC und Abstellraum kommt man in einen offenen und modernen Wohn/Kochbereich mit neuwertiger Küche. Ein großzügig dimensionierter...
Ausstattung
zentrale Lage mit schöner Abendsonne
Weitere Informationen
Stichworte
Gesamtfläche: 58,00 m², Anzahl der Badezimmer: 1, Anzahl der separaten WCs: 1, Anzahl Loggias: 1, Balkon-Terrassen-Fläche: 5,34 m², Kellerfläche: 4,00 m², Bundesland: Steiermark, 3 Etagen
Anbieter der Immobilie
Steindorff Immobilien GmbH
Albert Schweitzer Gasse 8, 8020 GRAZ
Online-ID: 2mmaw59
Referenznummer: O2100166946
Finde Angebote wie dieses
Günstige Immobilienfinanzierung einfach online berechnen
Persönliches Angebot berechnenWarum sehe ich diese Werbung? – Du siehst diese Werbung basierend auf Deiner Navigation auf unserer Website und der von Dir verwendeten Suchkriterien.
Diese Werbung wird bezahlt von durchblicker
Werbung melden
Hier geht es zu unserem Impressum, den Allgemeinen Geschäftsbedingungen, den Hinweisen zum Datenschutz und nutzungsbasierter Online-Werbung.