
WOGETRA
Vermietung
034 ···
Nr. anzeigenPreise & Kosten
Kaution
1.085,00
Warum sehe ich diese Anzeige? – Du siehst diese Anzeige basierend auf Ihrer Navigation auf unserer Website und den Suchkriterien, die du verwendet hast.
Lage
Mitten im Herzen von Grünau wohnen Sie unweit des Kulkwitzer Sees. Neben dem Schönauer Park und dem Robert-Koch-Park bietet Grünau attraktive Freizeitangebote zum Baden, Spazieren und andere zahlreiche sportliche Aktivitäten. Durch die Vielfalt diverser Bus-, Straßen- und S-Bahnlinien ist die Anbindung an andere Orte optimal...
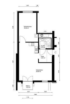
Die Wohnung
Wohnungslage
10. Geschoss
Bezug
sofort
Wohnanlage
Energie & Heizung
Warum sehe ich diese Anzeige? – Du siehst diese Anzeige basierend auf Ihrer Navigation auf unserer Website und den Suchkriterien, die du verwendet hast.
Energieausweistyp
Bedarfsausweis
Gebäudetyp
Wohngebäude
Wesentliche Energieträger
FERN
Gültigkeit
06.10.2014 bis 01.10.2024
Endenergiebedarf
61,00 kWh/(m²·a)
Weitere Energiedaten
Energieträger
Fernwärme
Heizungsart
Zentralheizung
Details
Objektbeschreibung
Die 11-geschossige Wohnanlage wurde 1985 erbaut und 2017 generalsaniert. Die hochwertig sanierten Wohnungen verfügen über eine Vielfalt von Grundrissen. Von einer kleinen 1-Raum-Wohnung bis hin zu einer geräumigen 3-Raum-Wohnung ist in diesem Objekt alles vorhanden. Der ebenerdige Aufzug fährt bis in das 10. Wohngeschoss. Die...
Ausstattung
Die Wohnung verfügt über Fußbodenheizung. Die Wände und Decken haben weiße Raufasertapeten. Der Aufzug fährt bis in die 9. Etage., so dass eine Etage zu Fuß zu gelaufen werden muss. Der Fußboden verfügt über einen Linoleumbelag.
Weitere Informationen
Stichworte
Anzahl Balkone: 1, 11 Etagen, Wohnungsnr.: 203/1/44
Anbieter der Immobilie
Online-ID: 2mmb95t
Referenznummer: 203/1/44
Finde Angebote wie dieses
Hier geht es zu unserem Impressum, den Allgemeinen Geschäftsbedingungen, den Hinweisen zum Datenschutz und nutzungsbasierter Online-Werbung.