
Wohnungsgesellschaft Riesa mbH
Vermietungsteam WGR Riesa
0 3 ···
Nr. anzeigenPreise & Kosten
in Warmmiete enthalten
Kaution
4.320,00
Provision für Mieter
provisionsfrei
Warum sehe ich diese Anzeige? – Du siehst diese Anzeige basierend auf Ihrer Navigation auf unserer Website und den Suchkriterien, die du verwendet hast.
Lage
Das Objekt liegt zentral im Stadtzentrum mit Blick auf eine historische Parkanlage und bietet den idealen Ausgangspunkt für Freizeitaktivitäten jeglicher Art. Ob Einkaufen, Spazieren gehen oder aktiv Sport treiben - kurze Wege sind garantiert.
Dank der zentralen Lage innerhalb eines etablierten Ärztehauses ist die...
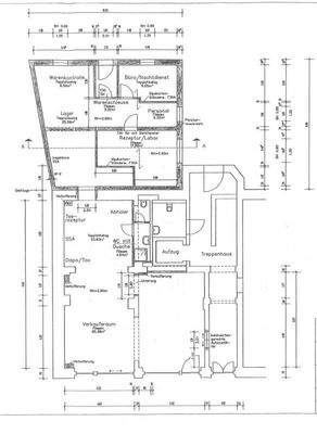
Büro-/Praxisfläche
Baujahr
1917
Bezug
sofort
Geschoss
Erdgeschoss
Energie & Heizung
Warum sehe ich diese Anzeige? – Du siehst diese Anzeige basierend auf Ihrer Navigation auf unserer Website und den Suchkriterien, die du verwendet hast.
Wärme
Energieausweistyp
Verbrauchsausweis
Gebäudetyp
Nicht-Wohngebäude
Baujahr laut Energieausweis
1917
Wesentliche Energieträger
FERN
Gültigkeit
seit 16.01.2018
Endenergieverbrauch (Wärme)
64,70 kWh/(m²·a) - Warmwasser enthalten
Weitere Energiedaten
Energieträger
Fernwärme
Details
Objektbeschreibung
Das denkmalgeschützte Wohn- und Geschäftshaus wurde stilgerecht saniert. Entstanden sind moderne und individuelle Wohnungen.
Ausstattung
Diese attraktive Gewerbeeinheit befindet sich im Erdgeschoss eines vollständig vermieteten Ärztehauses direkt im Stadtzentrum von Riesa. Die Lage überzeugt durch eine hohe Passantenfrequenz, eine ausgezeichnete Sichtbarkeit sowie kurze Wege zu Bus, Bahn und umliegenden Parkmöglichkeiten.
Die Einheit wurde über 20 Jahre...
Preisinformation
Nettokaltmiete: 1.440,00 EUR
Weitere Informationen
Sonstiges
- Zusätzliche Merkmale: behindertenfreundlich
Stichworte
Nutzfläche: 160,00 m², Gesamtfläche: 160,00 m², vermietbare Fläche: 160,00 m²
Anbieter der Immobilie
Online-ID: 2mmcp5e
Referenznummer: 1721/3/4002
Finde Angebote wie dieses
Hier geht es zu unserem Impressum, den Allgemeinen Geschäftsbedingungen, den Hinweisen zum Datenschutz und nutzungsbasierter Online-Werbung.