
Malo Immobilien
Herr Marcus Kümmel
004 ···
Nr. anzeigenPreise & Kosten
Provision für Käufer
3,57
Lage
Gochsheim ist eine Gemeinde im unterfränkischen Landkreis Schweinfurt, etwa fünf Kilometer südöstlich von Schweinfurt.
Es besteht eine direkte Anbindung zur Autobahn A70. Zur A3 und zur A7 sind es nur 5-10 Minuten.
Die Immobilie selbst liegt am Ortsrand in ruhiger Siedlungslage. In der jüngeren Vergangenheit wurde die...
Das Haus
Kategorie
Doppelhaushälfte
Baujahr
1953
Energie & Heizung
Warum sehe ich diese Anzeige? – Du siehst diese Anzeige basierend auf Ihrer Navigation auf unserer Website und den Suchkriterien, die du verwendet hast.
Energieausweistyp
Bedarfsausweis
Gebäudetyp
Wohngebäude
Baujahr laut Energieausweis
1953
Wesentliche Energieträger
OEL
Effizienzklasse
H
Endenergiebedarf
313,70 kWh/(m²·a)
Weitere Energiedaten
Energieträger
Öl
Heizungsart
Zentralheizung
Details
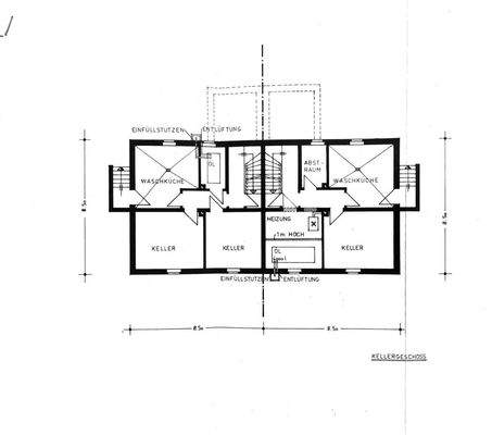
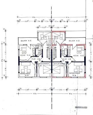
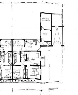
Objektbeschreibung
Wir freuen uns, Ihnen gleich zu Jahresanfang, eine sehr interessante Doppelhaushälfte in Gochsheim anbieten zu können. Die Immobilie aus dem Jahr 1953 wurde in massiver Bauweise als Einfamilienhaus erbaut. Rund 10 Jahre später wurde das Haus aufgestockt. Beide Wohnungen weisen den gleichen Grundriss mit einer Größe von...
Ausstattung
- 2 Wohnungen
- Keller
- Dachboden
- Terrasse
- Wintergarten
- Nebengebäude mit Wohneinheit
- Garage
Weitere Informationen
Sonstiges
Dieses Exposé dient der Kundeninformation. Die Beschreibung der Immobilie basiert auf Angaben und Daten Dritter bzw. des Verkäufers/Eigentümers. Für Druckfehler, Irrtümer oder falsche Angaben unter anderem auch von Wohn- und Flächenmaßen kann Malo Immobilien nicht zur Haftung herangezogen werden. Baurechtliche...
Anbieter der Immobilie
Malo Immobilien
Auguststrasse 17, 38100 Braunschweig
Online-ID: 2mmdk5x
Referenznummer: 7064
Finde Angebote wie dieses
Hier geht es zu unserem Impressum, den Allgemeinen Geschäftsbedingungen, den Hinweisen zum Datenschutz und nutzungsbasierter Online-Werbung.