
Inseriert auf 123provisionsfrei.de
Nils Klefisch
+49 ···
Nr. anzeigenPreise & Kosten
Provision für Käufer
provisionsfrei
Lage
Das Objekt in Wülfrath liegt in einer gut erschlossenen Umgebung mit vielfältigen öffentlichen Einrichtungen, Bildungseinrichtungen, Gesundheitsdiensten und einer soliden Anbindung an den öffentlichen Personennahverkehr (ÖPNV).
Bildungseinrichtungen: In unmittelbarer Nähe befindet sich die Theodor-Heuss-Realschule, nur...
Die Immobilie
Zu diesem Angebot wurden vom Anbieter keine weiteren Daten hinterlegt. Für weitere Informationen bitte den Anbieter kontaktieren.
Nach Informationen fragenDetails
Objektbeschreibung
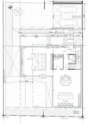
Hinterland-Grundstück mit fertiger Baugenehmigung für ein modernes Einfamilienhaus
Zum Verkauf steht ein attraktives Grundstück mit ca. 450 m² Fläche und bereits genehmigtem Bauprojekt für ein freistehendes Einfamilienhaus mit ca. 210 m² Wohnfläche, offener Galerie, Dachterrasse und Einzelgarage. Das Grundstück ist...
Ausstattung
- Ca. 450 m² Grundstücksfläche
- Genehmigtes Bauprojekt (210 m² Wohnfläche)
- Sofortiger Baubeginn möglich
- Architektenbetreuung möglich
- Ruhige, familienfreundliche Lage
- Einrichtungen des öffentlichen Lebens fußläufig
Weitere Informationen
Sonstiges
Energieausweis liegt zur Besichtigung vor.
Anbieter der Immobilie
Inseriert auf 123provisionsfrei.de
Helmstedter Str. 16, 38448 Wolfsburg
Online-ID: 2mmfm5x
Referenznummer: UUjrrFJjkI-3#RuxkW
Finde Angebote wie dieses
Hier geht es zu unserem Impressum, den Allgemeinen Geschäftsbedingungen, den Hinweisen zum Datenschutz und nutzungsbasierter Online-Werbung.