

Finestep Immobilien GmbH
Herr Hartmut Gralow
+49 ···
Nr. anzeigenPreise & Kosten
Provision für Käufer
3,57 % inkl. 19 % MwSt. inkl. MwSt.
Lage
RAMERBERG - DER GRÜNE ORT
Das wunderschön gelegene Ramerberg befindet sich im malerischen Atteltal, einem Zufluss des Inn. Die Gemeinde liegt zwischen Rott am Inn und Wasserburg am Inn und ist Mitglied der Verwaltungsgemeinschaft Rott am Inn.
Ramerberg ist nicht nur ein ausnehmend schöner, sondern auch ein...
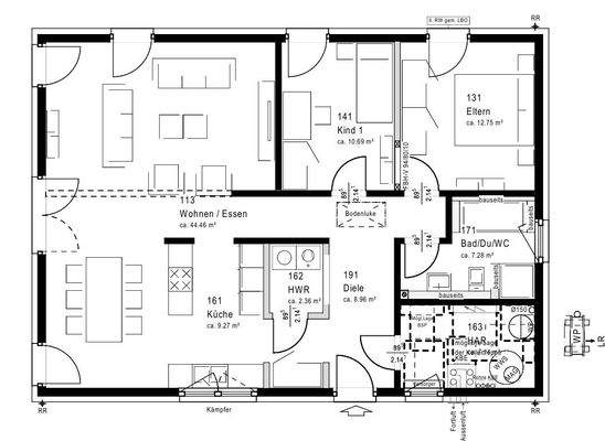
Das Haus
Kategorie
Bungalow
Baujahr
2025
Bezug
Nach Kundenwunsch
Details
Objektbeschreibung
Willkommen in Ramerberg - einer Gemeinde, die für ihre naturnahe Umgebung und ein lebendiges Miteinander bekannt ist. Auf einem sonnigen Grundstück von ca. 421 m² entsteht hier Ihr neues Zuhause: ein projektiertes Einfamilienhaus, das modernes Wohnen, durchdachte Architektur und energieeffizientes Bauen vereint.
Der...
Ausstattung
IHRE AUSSTATTUNG IM ÜBERBLICK:
- Projektiertes Einfamilienhaus in Holzständerbauweise (renommierter Fertighaushersteller)
- KfW-55-Effizienzhaus-Standard
- Errichtung auf Bodenplatte
- Luft-Wasser-Wärmepumpe mit Fußbodenheizung im Erdgeschoss
- Kontrollierte Be- und Entlüftung mit...
Weitere Informationen
Sonstiges
Wir freuen uns, Ihnen dieses Objekt bei einem Besichtigungstermin ausführlich vorzustellen. Aus rechtlichen Gründen bitten wir Sie, für Ihre erste Kontaktaufnahme mit uns das Kontaktformular des Portals zu nutzen, auf dem Sie diese Immobilie gefunden haben. Finestep bietet dieses Objekt provisionspflichtig zum...
Anbieter der Immobilie

Online-ID: 2mmhu5k
Referenznummer: 5206-1
Finde Angebote wie dieses
Hier geht es zu unserem Impressum, den Allgemeinen Geschäftsbedingungen, den Hinweisen zum Datenschutz und nutzungsbasierter Online-Werbung.