

CBRE GmbH
Frau Kathrin Ratsch
040 ···
Nr. anzeigenPreise & Kosten
Provision für Mieter
provisionsfrei
Warum sehe ich diese Anzeige? – Du siehst diese Anzeige basierend auf Ihrer Navigation auf unserer Website und den Suchkriterien, die du verwendet hast.
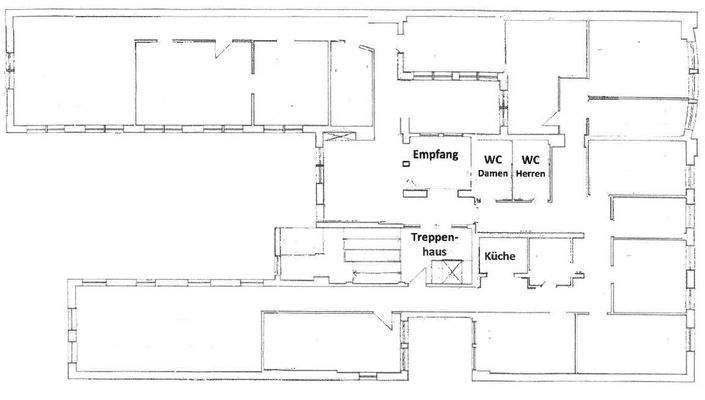
Büro-/Praxisfläche
Kategorie
Bürofläche
Bezug
kurzfristig
Geschoss
2. Geschoss
Details
Ausstattung
BELÜFTUNG/KLIMATISIERUNG
mechanische Be-/Entlüftung, öffenbare Fenster
SONNENSCHUTZ
außenliegender, elektrischer Sonnenschutz
BELEUCHTUNG
Deckenleuchten, Pendelleuchten
DECKE
verputzte Decke
WANDSYSTEME/TÜREN
Gipskartonwände, teilweise...
Weitere Informationen
Sonstiges
CBRE Immobiliensuche Büro - https://www.cbre.de/immobiliensuche/buero
AGB - https://www.cbre.de/agb
Stichworte
Gesamtfläche: 2.920,00 m²
Anbieter der Immobilie
CBRE GmbH
Valentinskamp 70, 20355 Hamburg

Online-ID: 2mml95s
Referenznummer: 19168@13@0@235780
Finde Angebote wie dieses
Hier geht es zu unserem Impressum, den Allgemeinen Geschäftsbedingungen, den Hinweisen zum Datenschutz und nutzungsbasierter Online-Werbung.