

KLASAN & Partner Immobilien GmbH & Co KG
Frau Katharina Klasan
004 ···
Nr. anzeigenPreise & Kosten
Provision für Käufer
Bitte beachte, das Angebot kann bei Vertragsabschluss die Zahlung einer Provision beinhalten. Weitere Informationen erhältst Du vom Anbieter.
Lage
Die Lage dieses Objekts in der Melkerstraße in Kirchberg an der Pielach vereint ruhiges Wohnen mit einer ausgezeichneten Infrastruktur.
In unmittelbarer Nähe finden sich Einkaufsmöglichkeiten, darunter Supermärkte, Bäckereien und lokale Geschäfte, die den täglichen Bedarf bequem decken. Auch gastronomische Angebote...
Die Wohnung
Wohnungslage
Erdgeschoss
Derzeitige Nutzung
vermietet
Wohnanlage
Energie & Heizung
Warum sehe ich diese Anzeige? – Du siehst diese Anzeige basierend auf Ihrer Navigation auf unserer Website und den Suchkriterien, die du verwendet hast.
Heizwärmebedarf (HWB)
34,17 kWh/(m²·a)
Gesamtenergieeffizienz (fGEE)
0,75
Weitere Energiedaten
Energieträger
Erdwärme, Flüssiggas
Heizungsart
Fußbodenheizung
Details
Objektbeschreibung
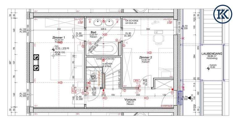
Top 15 - Moderne 3-Zimmer-Wohnung mit Dach- & Gartenterrasse
Mindestkaufpreis: 250.000 €
Sofortkaufpreis: 285.000 €
Vermietet bis: 31.12.2028
Informationen für Investoren
Nettorendite: 2,68 %
Monatliche Nettomiete: € 637,59
Jährliche Nettomiete: € 7.651,08
Diese...
Ausstattung
Top 15 - Modern 3-Room Apartment with Roof & Garden Terrace
Rented until: 31.12.2028
Information for Investors
Net Yield: 2,68%
Monthly Net Rent: € 637,59
Annual Net Rent: € 7.651,08
This modern 3-room apartment impresses with a spacious living area of 91,77 m² and a...
Weitere Informationen
Sonstiges
Immobilienbewertung & Verkaufsangebot
Möchten Sie den aktuellen Marktwert Ihrer Immobilie erfahren oder sind Sie auf der Suche nach einer passenden Liegenschaft? Wir bieten Ihnen eine unverbindliche und fundierte Wertermittlung basierend auf aktuellen Marktanalysen an. Gerne präsentieren wir Ihnen...
Anbieter der Immobilie
KLASAN & Partner Immobilien GmbH & Co KG
Groß-Enzersdorfer Str. 52/1/01, 1220 WIEN

Online-ID: 2mmlb5z
Referenznummer: 25/12532
Finde Angebote wie dieses
Günstige Immobilienfinanzierung einfach online berechnen
Persönliches Angebot berechnenWarum sehe ich diese Werbung? – Du siehst diese Werbung basierend auf Deiner Navigation auf unserer Website und der von Dir verwendeten Suchkriterien.
Diese Werbung wird bezahlt von durchblicker
Werbung melden
Hier geht es zu unserem Impressum, den Allgemeinen Geschäftsbedingungen, den Hinweisen zum Datenschutz und nutzungsbasierter Online-Werbung.