
Immobilien Maria Maier
Frau Maria Maier
085 ···
Nr. anzeigenPreise & Kosten
Kaution
1.180,00
Warum sehe ich diese Anzeige? – Du siehst diese Anzeige basierend auf Ihrer Navigation auf unserer Website und den Suchkriterien, die du verwendet hast.
Lage
Weng im niederbayerischen Landkreis Passau ist ein Ortsteil der Stadt Bad Griesbach im Rottal. Weng liegt zwei Kilometer westlich von Bad Griesbach. Nach Fürstenzell sind es ca. 20 km, nach Pocking ca. 15 km und nach Passau ca. 30 km. In Bad Griesbach und in diesen umliegenden Orten findet man eine Vielzahl an Ärzten...
Die Wohnung
Kategorie
Maisonette
Wohnungslage
Erdgeschoss
Bezug
01.02.2026
Wohnanlage
Energie & Heizung
Warum sehe ich diese Anzeige? – Du siehst diese Anzeige basierend auf Ihrer Navigation auf unserer Website und den Suchkriterien, die du verwendet hast.
Energieausweistyp
Bedarfsausweis
Gebäudetyp
Wohngebäude
Baujahr laut Energieausweis
1996
Wesentliche Energieträger
GAS
Gültigkeit
bis 21.04.2030
Effizienzklasse
D
Endenergiebedarf
110,40 kWh/(m²·a)
Weitere Energiedaten
Energieträger
Gas
Heizungsart
Zentralheizung
Details
Objektbeschreibung
Diese tolle 2-Zimmer-Maisonette-Wohnung liegt abseits der Hauptstraße in sehr ruhiger, idyllischer Dorflage mit Blick über Wiesen und Felder. Sie erstreckt sich über das 1. Obergeschoss ins Dachgeschoss eines Mehrfamilienhauses mit insgesamt 3 Wohneinheiten.
Bestens geeignet und wünschenswert für diese Wohnung wäre ein...
Ausstattung
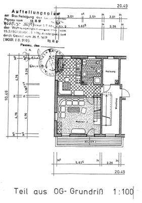
RAUMAUFTEILUNG OG - ca. 53 m²:
- Flur
- Küche mit EBK und Essbereich (Spülmaschine, Herd und Dunstabzug neu)
- Wohnzimmer mit Schwedenofen (Holz) und Zugang zum Balkon
- Badezimmer mit Duschwanne, Waschbecken und WC
- Balkon
- Holztreppe vom Wohnzimmer ins DG
RAUMAUFTEILUNG DG ca. 30 m²:
-...
Preisinformation
1 Carportplatz
Weitere Informationen
Sonstiges
Bitte stellen Sie Ihre Anfragen mit Ihrer vollständigen Adresse und Telefonnummer bitte ausschließlich per Kontaktformular oder per E-Mail.
Alle Angaben sind ohne Gewähr und basieren ausschließlich auf Informationen, die uns von unserem Auftraggeber zur Verfügung gestellt wurden. Wir übernehmen keine...
Anbieter der Immobilie
Immobilien Maria Maier
Stadtplatz 19, 94086 Bad Griesbach
Online-ID: 2mmm35l
Referenznummer: WM2025-6
Finde Angebote wie dieses
Weitere Immobilien
Hier geht es zu unserem Impressum, den Allgemeinen Geschäftsbedingungen, den Hinweisen zum Datenschutz und nutzungsbasierter Online-Werbung.