
FH Solutions GmbH
Herr Dipl.-Ing. Peter Schelper
+49 ···
Nr. anzeigenPreise & Kosten
Provision für Käufer
provisionsfrei
Lage
?? Gebaut wird in einem schönen, zentralgelegenen Wohngebiet in Hahnstätten.
??????????? Der Kindergarten sowie die Grundschule sind in wenigen Minuten zu erreichen. Weiterführende Schulen befinden sich direkt im Ort mit der Realschule plus im Aartal.
?? In nur wenigen Minuten erreichen Sie umfangreiche...
Das Haus
Kategorie
Einfamilienhaus
Energie & Heizung
Warum sehe ich diese Anzeige? – Du siehst diese Anzeige basierend auf Ihrer Navigation auf unserer Website und den Suchkriterien, die du verwendet hast.
Weitere Energiedaten
Heizungsart
Fußbodenheizung
Details
Objektbeschreibung
Hier können Sie als Bauherr die Hausbau-Firma SCHWABENHAUS mit der Errichtung eines energieeffizienten Hauses mit Festpreisgarantie und zeitnaher Fertigstellung beauftragen und Ihre Bauwünsche INDIVIDUELL auf einem wunderschönen Baugrundstück verwirklichen, welches Sie vorher direkt "von privat" erwerben würden. -- Die hier...
Ausstattung
Dieses SCHWABENHAUS wird schlüsselfertig aus einer Hand (100% bezugsfertig) angeboten.
In der Ausstattung "schlüsselfertig" sind bei SCHWABENAUS entscheidende Mehrleistungen schon im Standard der Bauleistungsbeschreibung (BLB) wie folgt enthalten:
* Alle Leistungen für ein 100% BEZUGSFERTIGES Wohnhaus. Dabei...
Weitere Informationen
Sonstiges
Das angebotene Haus ist projektiert inkl. Grundstück. Das Grundstück wird in Kommission mit angeboten bzw. direkt von Dritten verkauft. Daher kann der o.g. Preis aufgrund aktueller Marktsituationen schwanken.
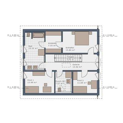
Abbildungen und Grundrisse sind beispielhaft und können Extras zeigen, wie z.B. Carports, Garagen...
Anbieter der Immobilie
FH Solutions GmbH
Neukirchner Str. 43, 65510 Hünstetten

Online-ID: 2mmr65v
Referenznummer: PS-FK-362502-Hahnstätten
Finde Angebote wie dieses
Hier geht es zu unserem Impressum, den Allgemeinen Geschäftsbedingungen, den Hinweisen zum Datenschutz und nutzungsbasierter Online-Werbung.