

Edilfin
Frau Stefania Ravelli
+39 ···
Nr. anzeigenPreise & Kosten
Provision für Käufer
4%
Das Haus
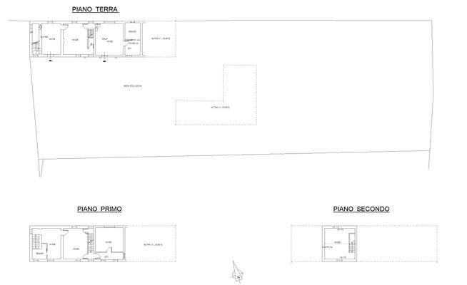
Geschosse
2 Geschosse
Derzeitige Nutzung
frei
Energie & Heizung
Warum sehe ich diese Anzeige? – Du siehst diese Anzeige basierend auf Ihrer Navigation auf unserer Website und den Suchkriterien, die du verwendet hast.
Weitere Energiedaten
Energieträger
Elektro, Gas
Heizungsart
offener Kamin
Details
Objektbeschreibung
Ref. NA-072-27 Komplett renoviertes Haus in Montù Beccaria, Stadtteil Fontanetto Oriente. Zum Verkauf steht ein komplett renoviertes, zweistöckiges Haus im ruhigen Weiler Fontanetto Oriente in der Gemeinde Montù Beccaria. Das kürzlich renovierte Haus besticht durch einladende und detailverliebte Innenräume mit eleganten...
Weitere Informationen
Stichworte
Zustand: renoviert, gepflegt
Versorgung: Städtische Wasserversorgung, Städtische Stromversorgung
Anbieter der Immobilie
Edilfin
Via Giorgio Strehler 19, 25080 Manerba del Garda

Online-ID: 2mmru5e
Referenznummer: 33091072-27
Finde Angebote wie dieses
Hier geht es zu unserem Impressum, den Allgemeinen Geschäftsbedingungen, den Hinweisen zum Datenschutz und nutzungsbasierter Online-Werbung.