
EDEX Immobilien GmbH
Herr Harald Anderlik
+43 ···
Nr. anzeigenPreise & Kosten
Kaution
3-6 Bruttomonatsmieten
Provision für Mieter
3 Bruttomonatsmieten zzgl. 20% USt.
Warum sehe ich diese Anzeige? – Du siehst diese Anzeige basierend auf Ihrer Navigation auf unserer Website und den Suchkriterien, die du verwendet hast.
Die Ladenfläche
Erdgeschoss
Details
Objektbeschreibung
Highlights
* Markante Ecklage & starke Präsenz
* Nachbarschaft mit Frequenzbringern
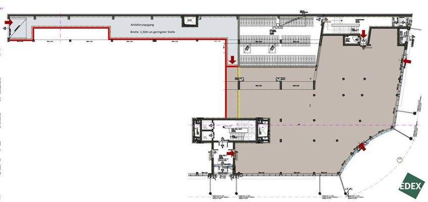
* Durchdachte Logistik: eigener Anlieferungsgang ca. 164,85 m², min. Breite ca. 1,50 m
* Nutzungsbereit: Übernahme "wie liegt und steht"; Innenausbau verbleibt
* Leistungsfähige Fläche: gesamt ca. 784,83 m²...
Preisinformation
Nettokaltmiete: 10.000,00 EUR
Weitere Informationen
Stichworte
Nutzfläche: 784,83 m², Bundesland: Niederösterreich
Anbieter der Immobilie
Online-ID: 2mms55b
Referenznummer: OBGC2025111412114157427867ea05e
Finde Angebote wie dieses
Hier geht es zu unserem Impressum, den Allgemeinen Geschäftsbedingungen, den Hinweisen zum Datenschutz und nutzungsbasierter Online-Werbung.