
AS Allgemeine Service GmbH
Frau Sandra Sprenger
037 ···
Nr. anzeigenPreise & Kosten
Kaution
1.598,00 2 KM
Warum sehe ich diese Anzeige? – Du siehst diese Anzeige basierend auf Ihrer Navigation auf unserer Website und den Suchkriterien, die du verwendet hast.
Die Wohnung
Wohnungslage
2. Geschoss
Bezug
sofort
Energie & Heizung
Warum sehe ich diese Anzeige? – Du siehst diese Anzeige basierend auf Ihrer Navigation auf unserer Website und den Suchkriterien, die du verwendet hast.
Energieausweis: für diesen Gebäudetyp nicht notwendig
Weitere Energiedaten
Energieträger
Fernwärme
Heizungsart
Fußbodenheizung, Zentralheizung
Details
Objektbeschreibung
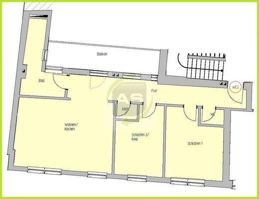
4 Zi.-Wohnung mit Balkon+Einbauküche in Wohn- und Geschäftshaus
Ausstattung
Erstbezug nach Sanierung +++ großzügiger Wohn-/Küchenbereich mit Essplatzmöglichkeit + Zugang Balkon +++ Grundrissgestaltung bzgl. weiterem Zimmer nach Mieterwunsch - daher verschiedene Grundrissversionen möglich +++ moderne Einbauküche zur unentgeltlichen Nutzung +++ alle Räume separat von Flur aus begehbar +++ Tageslichtbad...
Weitere Informationen
Sonstiges
Weitere Immobilienangebote finden Sie unter WWW.VERMIETUNG.AS
Stichworte
Anzahl der Schlafzimmer: 3, Anzahl der Badezimmer: 1, Anzahl der separaten WCs: 1, Anzahl Balkone: 1, 3 Etagen, Wohnungsnr.: 02/2.OG re.
Anbieter der Immobilie
AS Allgemeine Service GmbH
Innere Schneeberger Straße 22, 08056 Zwickau
Online-ID: 2mmtt5c
Referenznummer: 04162_5
Finde Angebote wie dieses
Hier geht es zu unserem Impressum, den Allgemeinen Geschäftsbedingungen, den Hinweisen zum Datenschutz und nutzungsbasierter Online-Werbung.