
ohne-makler.net - Immobilien selbst vermarkten
Privat von Helmut Schmidt
Kontaktiere den Anbieter schriftlich, es ist keine Telefonnummer hinterlegt.
Preise & Kosten
Provision für Käufer
provisionsfrei
Lage
DAS ANWESEN - Kaufen OHNE MAKLERKOSTEN
Das Anwesen liegt im Naturpark Schwarzwald mit allen seinen Möglichkeiten.
Dieses außergewöhnliche und in 2025 top-renovierte und modernisierte Zweifamilien-Haus in Alleinlage mit 1,73 ha Wald und Wiesen am Wildbach, mit einer Quelle zur Wasserversorgung, PV-Anlage und einer...
Das Haus
Kategorie
Mehrfamilienhaus
Baujahr
1992
Bezug
nach Absprache
Energie & Heizung
Warum sehe ich diese Anzeige? – Du siehst diese Anzeige basierend auf Ihrer Navigation auf unserer Website und den Suchkriterien, die du verwendet hast.
Energieausweistyp
Verbrauchsausweis
Gebäudetyp
Wohngebäude
Effizienzklasse
C
Endenergieverbrauch
83,00 kWh/(m²·a)
Weitere Energiedaten
Energieträger
Öl
Heizungsart
offener Kamin, Zentralheizung
Details
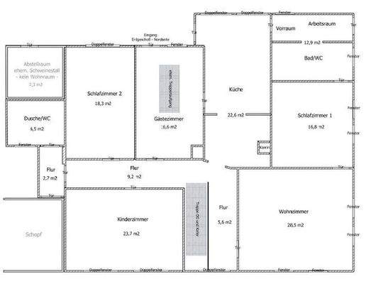
Objektbeschreibung
KRISENSICHER UND AUTARK IN DIE ZUKUNFT
Vergessen Sie Schlagzeilen vom Black-Out und von Zusammenbrüchen der Stromnetze und anderen Katastrophen und den damit verbunden Folgen, wie der Ausfall vom wichtigsten Grundnahrungsmittel "Wasser". Die Wohnungen bleiben kalt, da ohne Strom auch keine moderne Heizung funktioniert und...
Ausstattung
Balkon, Terrasse, Keller, Dachterrasse, Vollbad, Duschbad, Einbauküche, Gäste-WC, Kamin, Parkett, Laminat, Fliesen, Sonstiges (s. Text)
Bemerkungen:
KURZFASSUNG -- ÜBERBLICK
Mehrfamilienhaus - 2025 renoviertes zum Schnäppchenpreis mit zwei getrennten und in sich geschlossenen Wohnungen, jedoch durch eine Treppe...
Preisinformation
2 Carportplätze
4 Stellplätze
2 Garagenstellplätze
Weitere Informationen
Sonstiges
Heizungsart: Zentralheizung
Energieträger: Öl
MAKLERFREI
Sparen Sie Makler- oder Vermittlungsgebühren von über 20.000 Euro, da der Verkauf privat organisiert ist.
ERSTBEZUG NACH RENOVIERUNG
SOFORT VERFÜGBAR
Das angebotene Anwesen ist bezugsfertige und mieterfrei und Sie können nach...
Anbieter der Immobilie
ohne-makler.net - Immobilien selbst vermarkten
Humboldtstr. 25 A, 21509 Glinde
Privat von Helmut Schmidt
Dein Ansprechpartner
Kontaktiere den Anbieter schriftlich, es ist keine Telefonnummer hinterlegt.
Online-ID: 2mmu75r
Referenznummer: 414429
Finde Angebote wie dieses
Hier geht es zu unserem Impressum, den Allgemeinen Geschäftsbedingungen, den Hinweisen zum Datenschutz und nutzungsbasierter Online-Werbung.