
Bien-Zenker Bert Thiemer
Herrn Bert Thiemer
017 ···
Nr. anzeigenPreise & Kosten
Provision für Käufer
Bitte beachte, das Angebot kann bei Vertragsabschluss die Zahlung einer Provision beinhalten. Weitere Informationen erhältst Du vom Anbieter.
Lage
Struppen bietet Ihnen eine hervorragende Lebensqualität in einer idyllischen Umgebung. Die Infrastruktur ist bestens entwickelt, mit zahlreichen Bildungseinrichtungen in der Nähe, die für Familien eine wichtige Rolle spielen. Ob Kindergärten, Grundschulen oder weiterführende Schulen - alles ist bequem erreichbar. Auch...
Das Haus
Kategorie
Einfamilienhaus
Details
Objektbeschreibung
Nutzen Sie die neuen Fördermöglichkeiten - dieses Haus ist ein Effizienzhaus 55.
Mit der integrierten Lüftung und Kühlung haben Sie auch im Hochsommer immer ein angenehmes Raumklima. Es wird in der Ausstattungsstufe "Zur Ausstattung fertig" hergestellt. Weniger Eigenleistung - kein Problem. Mehr Eigenleistungen - auch...
Ausstattung
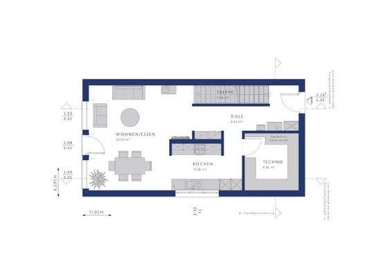
Das BALANCE 120 bietet Ihnen eine durchdachte Grundrissgestaltung mit insgesamt vier Zimmern, die Platz für die ganze Familie schaffen. Mit einer Wohnfläche von 120 m² finden Sie hier ausreichend Raum für Ihre individuellen Bedürfnisse. Das großzügige Wohn- und Esszimmer ist das Herzstück des Hauses und verbindet sich...
Anbieter der Immobilie
Bien-Zenker Bert Thiemer
Am Hügel 3a, 01458 Ottendorf-Okrilla
Online-ID: 2mmub5y
Referenznummer: 12099-2 Stru B120
Finde Angebote wie dieses
Hier geht es zu unserem Impressum, den Allgemeinen Geschäftsbedingungen, den Hinweisen zum Datenschutz und nutzungsbasierter Online-Werbung.