
Crozilla.com
Eurovilla
+38 ···
Nr. anzeigenPreise & Kosten
Provision für Käufer
Bitte beachte, das Angebot kann bei Vertragsabschluss die Zahlung einer Provision beinhalten. Weitere Informationen erhältst Du vom Anbieter.
Die Immobilie
Zu diesem Angebot wurden vom Anbieter keine weiteren Daten hinterlegt. Für weitere Informationen bitte den Anbieter kontaktieren.
Nach Informationen fragenDetails
Objektbeschreibung
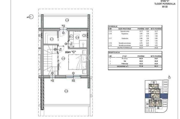
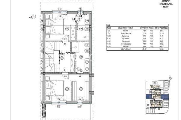
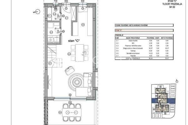
U Porecu, biseru Istarskog poluotoka s najljepse uredenim zelenim povrsinama, prekrasnim lagunama, nalazi se ovaj stan od 125 m2 rasporeden na tri etaze. Stan je dio moderne kuce, koja zapravo predstavlja stanove u nizu. Svaki stan proteze se kroz tri etaze i pripada mu veliki i lijep dio vrta. Stan C, treci je u nizu. U...
Weitere Informationen
Stichworte
Anzahl der Schlafzimmer: 3, 1 Etagen
Anbieter der Immobilie
Crozilla.com
Nova cesta 60, 10000 ZAGREB
Online-ID: 2mmvq5q
Referenznummer: 14845528_13
Finde Angebote wie dieses
Hier geht es zu unserem Impressum, den Allgemeinen Geschäftsbedingungen, den Hinweisen zum Datenschutz und nutzungsbasierter Online-Werbung.