
Centra Treuhand- und Anlage- GmbH
Herr Finn Jungbauer
Kontaktiere den Anbieter schriftlich, es ist keine Telefonnummer hinterlegt.
Preise & Kosten
nicht in Nebenkosten enthalten
Kaution
2412
Warum sehe ich diese Anzeige? – Du siehst diese Anzeige basierend auf Ihrer Navigation auf unserer Website und den Suchkriterien, die du verwendet hast.
Lage
Innenstadt, Einkauf & Freizeit — alles da
Die Innenstadt von Erkelenz lädt zum entspannten Shoppen ein: In der Fußgängerzone rund um Markt, Aachener Straße und Kölner Straße finden sich zahlreiche Fachgeschäfte, Boutiquen, Cafés und kleine Läden — praktisch für alles vom schnellen Wocheneinkauf bis zum...
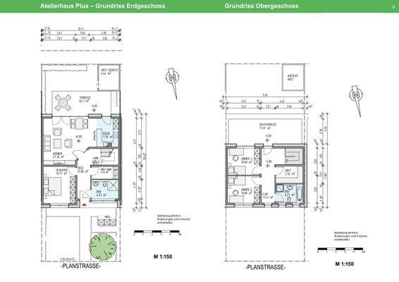
Das Haus
Kategorie
Einfamilienhaus
Baujahr
2017
Bezug
01.03.2026
Energie & Heizung
Warum sehe ich diese Anzeige? – Du siehst diese Anzeige basierend auf Ihrer Navigation auf unserer Website und den Suchkriterien, die du verwendet hast.
Energieausweistyp
Bedarfsausweis
Gebäudetyp
Wohngebäude
Baujahr laut Energieausweis
2017
Wesentliche Energieträger
Strom-Mix
Gültigkeit
02.08.2019 bis 01.08.2029
Effizienzklasse
A+
Endenergiebedarf
16,00 kWh/(m²·a)
Weitere Energiedaten
Haustyp
Niedrigenergiehaus
Energieträger
Elektro
Heizungsart
Fußbodenheizung, Luft-/Wasser-Wärmepumpe, Zentralheizung
Details
Objektbeschreibung
Dieses moderne Einfamilienhaus vereint zeitgemäße Architektur, hervorragende Energieeffizienz und ein äußerst angenehmes Wohnambiente – ideal für alle, die ein hochwertiges, ruhiges und nachhaltiges Zuhause suchen.
Mit einem Energiebedarf von nur ca. 16 kWh/m²a gehört das Gebäude zur Kategorie der Niedrigenergiehäuser und...
Weitere Informationen
Sonstiges
Wenn das Haus Ihr Interesse geweckt hat, stellen Sie sich gerne per Mail vor und vereinbaren einen Besichtigungstermin mit uns.
Anbieter der Immobilie
Herr Finn Jungbauer
Dein Ansprechpartner
Kontaktiere den Anbieter schriftlich, es ist keine Telefonnummer hinterlegt.
Online-ID: 2mmwm5m
Finde Angebote wie dieses
Hier geht es zu unserem Impressum, den Allgemeinen Geschäftsbedingungen, den Hinweisen zum Datenschutz und nutzungsbasierter Online-Werbung.