

Immoraum GmbH
Herr Raphael Jung
+49 ···
Nr. anzeigenPreise & Kosten
Provision für Mieter
provisionsfrei
Warum sehe ich diese Anzeige? – Du siehst diese Anzeige basierend auf Ihrer Navigation auf unserer Website und den Suchkriterien, die du verwendet hast.
Lage
Die Lage zeichnet sich durch eine hervorragende Erreichbarkeit mit öffentlichen Verkehrsmitteln aus: Der Göppinger Bahnhof sowie mehrere Buslinien sind in wenigen Minuten erreichbar. Auch mit dem Auto ist der Standort gut angebunden, Parkhäuser und öffentliche Stellplätze befinden sich in unmittelbarer Nähe. Durch seine...
Büro-/Praxisfläche
Baujahr
-
Details
Objektbeschreibung
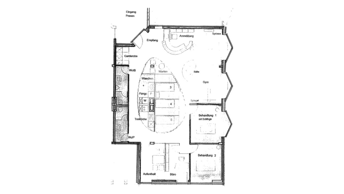
Diese Praxisfläche verfügt über eine bestehende medizinische Raumaufteilung mit Empfang, Wartebereich, Behandlungsräumen und Funktionszonen. Durch die frühere orthopädische Nutzung sind praxisgerechte Strukturen bereits vorhanden, was den Einstieg für medizinische oder therapeutische Fachrichtungen erleichtert. Die Fläche...
Ausstattung
getr. Damen- u. Herren WCs, Ausbau nach Mieterwunsch, Sonnenschutz außen, Teeküche, EDV-Verkabelung, Aufzug
Weitere Informationen
Sonstiges
Noch nicht das Richtige? Wir führen weitere Objekte im Großraum Stuttgart. Sprechen Sie mit unseren Beratern. Gemeinsam finden wir Ihr Wunschobjekt! Wir freuen uns auf Ihre Kontaktaufnahme!
Nach den §§ 16, 16 a EnEV ist der Eigentümer, Verkäufer, Vermieter, Verpächter und Leasinggeber bei der...
Anbieter der Immobilie
Immoraum GmbH
Uhlandstraße 14, 70182 Stuttgart

Online-ID: 2mmxe5n
Referenznummer: IRx1329/G3/E1
Finde Angebote wie dieses
Hier geht es zu unserem Impressum, den Allgemeinen Geschäftsbedingungen, den Hinweisen zum Datenschutz und nutzungsbasierter Online-Werbung.