

Heindrich Immobilien GmbH
Herr Lennart Fey
004 ···
Nr. anzeigenPreise & Kosten
Provision für Käufer
Käufer- und Verkäuferprovision: jeweils 2,975% (inkl. 19 % MwSt.)
Lage
Die Ferienhausanlage im Ortsteil Töplitz der Stadt Werder (Havel) liegt eingebettet in die wasserreiche Landschaft des Havellands. Die Nähe zu den Potsdamer und Brandenburger Havelseen macht das Gebiet zu einem beliebten Ziel für Wassersportler, auch Rad- und Wandertouren bieten sich an. Die ruhige, naturnahe Umgebung...
Das Haus
Baujahr
1987
Energie & Heizung
Warum sehe ich diese Anzeige? – Du siehst diese Anzeige basierend auf Ihrer Navigation auf unserer Website und den Suchkriterien, die du verwendet hast.
Weitere Energiedaten
Heizungsart
Zentralheizung
Details
Objektbeschreibung
Erfüllen Sie sich den Traum vom eigenen Ferienhaus am Wasser - inmitten herrlicher Natur, unweit von Berlin und Potsdam!
Nur wenige Schritte von der Havel entfernt, in einer kleinen, exklusiven Ferienhausanlage genießen Sie Ruhe, Natur und vielseitige Möglichkeiten der aktiven Freizeitgestaltung (Radfahren, Wandern...
Ausstattung
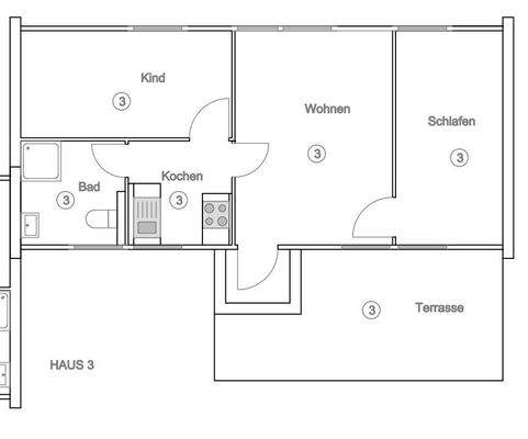
Einzelbungalow innerhalb der Ferienanlage Töplitz | Für eine (Freizeit-)Eigennutzung oder eine Ferienvermietung geeignet
- Baujahr ca. 1987 | Leichtbauweise vom Typ B30/80 oder B55
- Drei Zimmer (davon 2 Schlafzimmer)
- Kochmöglichkeit/Bereich für (Klein-)Elektrogeräte
- Bad mit Dusche
- Terrasse
- Das...
Weitere Informationen
Sonstiges
Der Energieausweis befindet sich derzeit in der Erstellung.
Der Erwerb der gesamten Ferienanlage ist ebenfalls möglich - sprechen Sie uns an!
Die Angaben zum Objekt stammen vom Verkäufer und dienen einer ersten Information. Bei aller Sorgfalt übernehmen wir keine Garantie für die Richtigkeit und...
Anbieter der Immobilie
Heindrich Immobilien GmbH
Goethestraße 21, 34119 Kassel

Online-ID: 2mmxq5r
Referenznummer: VK.HAVEL.BUNGW
Finde Angebote wie dieses
Hier geht es zu unserem Impressum, den Allgemeinen Geschäftsbedingungen, den Hinweisen zum Datenschutz und nutzungsbasierter Online-Werbung.