
FALC Immobilien Heilbronn
Herr Andreas Franzke
+49 ···
Nr. anzeigenPreise & Kosten
Provision für Käufer
5,95 % inkl. 19 % MwSt.
Weiteres zum Provisionshinweis siehe unter Punkt: Sonstiges im Exposé.
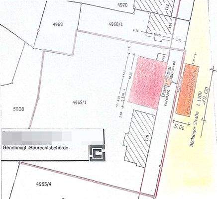
Lage
Das Grundstück in der befindet sich im Heilbronner Stadtteil Neckargartach, einer gewachsenen und sehr gut angebundenen Wohnlage im Herzen von Heilbronn. Der Stadtteil zeichnet sich durch eine angenehme Mischung aus ruhigem Wohnumfeld, naturnahen Bereichen und einer hervorragend ausgebauten Infrastruktur aus.
In der...
Das Grundstück
Details
Objektbeschreibung
Investoren aufgepasst: genehmigtes Bauverfahren - 6 Wohneinheiten auf einen Schlag!
Herr Andreas Franzke von FALC Immobilien Heilbronn, freut sich Ihnen diesen prachtvollen Bauplatz auf einer 1.200 m² Grundstücksfläche in unmittelbarer Nähe vom Neckar, der Heilbronner-City und des KI-Zentrums IPAI vorstellen zu...
Ausstattung
Anderweitig bebaut werden, darf das Grundstück nach § 34 BauGB - wie Nachbarbebauung: Innerhalb der im Zusammenhang bebauten Ortsteile ist ein Vorhaben zulässig, wenn es sich nach Art und Maß der baulichen Nutzung, der Bauweise und der Grundstücksfläche, die überbaut werden soll, in die Eigenart der näheren Umgebung einfügt...
Preisinformation
6 Garagenstellplätze
Weitere Informationen
Sonstiges
Die Objektbeschreibung beruht ganz oder zum Teil auf Angaben des Eigentu?mers, der Text wurde teilweise mit Unterstu?tzung ku?nstlicher Intelligenz bearbeitet und u?berpru?ft. Fu?r die Richtigkeit oder Vollsta?ndigkeit u?bernehmen wir keine Gewa?hr.
Beim ausgewiesenen Preis handelt es sich um den...
Anbieter der Immobilie
FALC Immobilien Heilbronn
Neckarsulmer Str. 2, 74076 Heilbronn
Online-ID: 2mmzg5f
Referenznummer: FALC-FlAb-77254
Finde Angebote wie dieses
Hier geht es zu unserem Impressum, den Allgemeinen Geschäftsbedingungen, den Hinweisen zum Datenschutz und nutzungsbasierter Online-Werbung.